Pagina corrente: 17

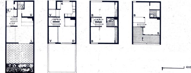
Second street town houses, Philadelphia




<--Precedente  Principale  Successivo-->

Second street town houses, Philadelphia