Graduation ThesisTesi di Laurea
Antonino Saggio I Quaderni
Sapienza, Università di Roma, Facoltà
di Architettura
Questo progetto fa parte della ricerca della Cattedra di Antonino Saggio
Tevere Cavo una infrastruttura di nuova generazione per Roma tra passato e futuro
pubblicata nel 2016 in questo volume:

EPUB | STAMPA | PREVIEW
***
Tevere Cavo
ex.[PO]
Nuovo ponte alle fornaci di Castel Giubileo
Centro tecnologico per lo sviluppo delle sperimentazioni costruttive a Roma

Liborio Sforza
AA 12-13 Tesi discussa il 22 Luglio 2013
Relatore Antonino Saggio
L’area delle fornaci subito all’interno del raccordo anulare e a poco distanza dalla diga idroelettrica di Castel Giubileo è un’area storica di Roma. Da qui si ricavava l’argilla che trasformata nelle fornaci esistenti da tempi antichi ma che grande sviluppo ebbero dopo l’unità d’Italia e il boom edilizio della capitale, ha costituito uno dei poli da cui è partita la costruzione della città. L’area è oggi abbandonata con alcuni residui industriali e innumerevoli problemi legati non solo al degrado in cui versa ma anche all’affastellarsi di interventi terziari, come la sede Rai di Saxa Rubra e residenziali in parti tra loro sconnesse. Il tutto inframezzato da zone naturali di grande potenzialità ma che lasciate in questo stato sollecitano azioni speculative che senza risolvere i nodi strutturali presenti potrebbero peggiorare ancora la situazione.
Il progetto ex.[PO] opera in due modi. Prima di tutto propone la creazione di un Centro tecnologico per lo sviluppo delle sperimentazioni costruttive a Roma. E' Un polo di mixité con funzioni produttive, espositive, culturali e di innovazione tecnologica tra loro coordinate. E’ un polo che manca a Roma e che appare molto congruo sia per la storia stessa dell’area sia per la possibilità di sviluppare economie e know how in un settore così importante nel passato e nel futuro della città.
Dal punto di vista architettonico l’intervento si muove su tutti i livelli di una progettazione integrata. Dal punto di vista urbanistico il progetto prevede un ponte che connette i quartieri sulle due sponde con un attraversamento ciclo pedonale. Contemporaneamente il ponte ospita un Museo della tradizioni costruttive. Il ponte è pensato come un vero spazio pubblico articolato su più livelli indipendenti che rende possibile anche la fruizione del Tevere alla sua stessa quota da parte dei cittadini. Il ponte si attacca a terra sulle due sponde con una serie di fabbricati che ospitano le funzioni fieristiche, commerciali, convegnistiche e i laboratori di ricerca. L’insieme dei corpi di fabbrica si distende con percorsi nelle aree limitrofe determinando il progetto del parco, disegnando gli accessi, i punti di approdo dal Tevere, e reinglobando alcune attività esistenti che si svolgono nell’area.
Si tratta di un progetto di forza straordinaria per l’innovazione del programma, per l’intreccio dei livelli urbani infrastrutturali e paesaggistici, per la bellezza del disegno dinamico e allo stesso tempo radicato alla realtà dell’area e alle preesistenze, per la cura anche del programma funzionale e degli spazi dei numerosi edifici che integrati e connessi l’uno all’altro ma anche autonomi funzionalmente compongono il complesso.
Il progetto di ex.[PO] parte da un insieme di evidenti crisi, concentrate nell’ex area delle fornaci di Castel Giubileo: una vasta distesa pianeggiante divisa in due parti dallo scorrere del Tevere e racchiusa dalla ex diga idroelettrica (oggi completamente inglobata nel terzo anello del GRA) a nord, da una serrata fila di fabbriche che si adagiano lungo la via Flaminia ad ovest e dalle alture dei colli salari ad est.
In quest’area, fortemente caratterizzata anche dalla presenza del comparto Rai di Saxa rubra, sono evidenti le mancanze di una programmazione strategica e di una pianificazione paesaggistica; a vaste “praterie incolte” si affiancano gli enormi capannoni industriali, mentre il tessuto urbano è spezzato in due dalla presenza del raccordo anulare e dal Tevere stesso, senza la possibilità di attraversamento ciclo/pedonale.
L’area è densa dal punto di vista della memoria storica e produttiva della città: da queste terre sono fuoriusciti i materiali vivi che hanno eretto, mattone dopo mattone, Roma stessa.
Partendo da questi punti critici, nasce ex.[PO], ovvero un insieme di interventi architettonici, paesaggistici, urbani e infrastruttuali che sia capace di affrontare in una sola sola operazione, l’insieme delle problematiche presenti nel territorio circostante.
L’idea base è quella di creare un “ponte multifunzione”, ovvero una struttura che consenta l’attraversamento ciclo/pedonale del Tevere e allo stesso sia una infrastruttura “abitata” che consenta di caratterizzare un nuovo “polo” in cui catalizzare la moltitudine di opportunità che l’area di progetto e le sue attività offrono. Accanto al ponte il progetto comprende infatti anche la riqualificazione della vasta area dell’ansa del Tevere, un tempo soggetta ad esondazione in caso di piena del fiume, ma oggi completamente protetta dai argini eretti nei primi anni 2000.
Il ponte dunque si accompagna ad un complesso di strutture che si “distendono” sul territorio, in maniera quasi filamentosa; Si determinano così percorsi e piazze, specchi d’acqua e giardini a tema per creare una duplice attrattiva tra natura e architettura. Chi percorre il ponte è spinto nel parco e chi arriva dal parco è invitato verso il nuovo ponte e le altre costruzioni.
Sulla sponda ovest del Tevere, a contatto con il comparto RAI e la frazione di Labaro, sono disposti i primi tre blocchi del complesso, ognuno dei quali può funzionare sia in autonomia in caso di necessità, sia in diretta connessione con gli altri, generando così una mixite di funzioni.
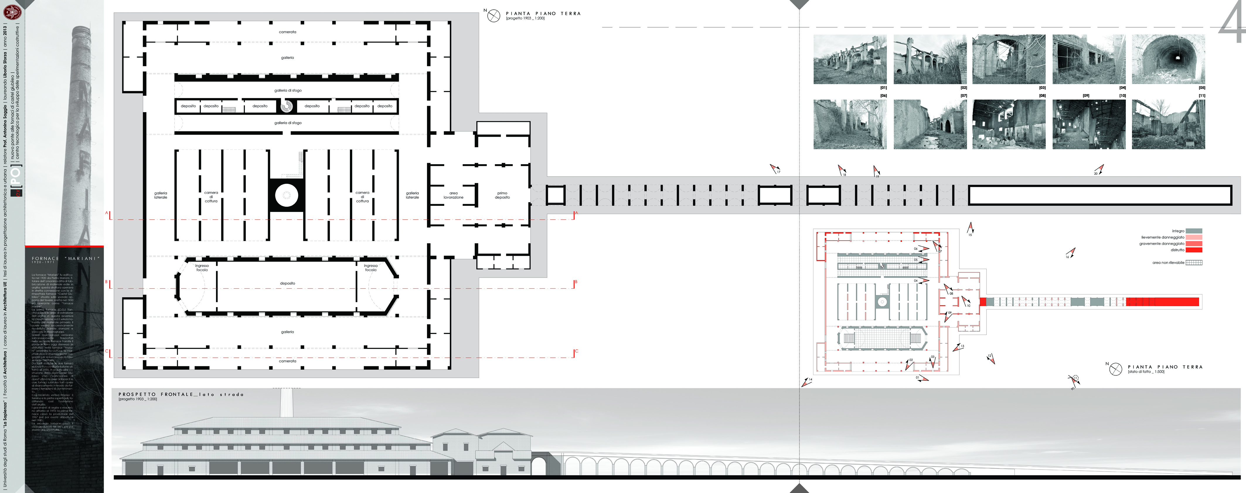
Il primo “gruppo” è composto dall’ingresso principale al complesso, il quale va ad innestarsi direttamente nella vecchia fornace “Mariani”; così facendo, si va a recuperare un l’ultimo simbolo del luogo, inglobandolo nella nuova progettazione.
Dopo uno studio delle preesistenze e delle lore attuali consistenze, sono state operate mirate demolizioni, conservando le parti meno compromesse dall’abbandono, ma senza far perdere di carattere la vecchia fornace; si conserva intatta la canna fumaria e tutto il prospetto del fronte strada, nel quale gli interventi sono stati minimi; all’interno della fornace è predisposto un “museo storico” sulla stessa, sfruttando le collezioni grafiche e di reperti delle varie associazioni di quartiere limitrofe.
Al blocco della fornace va ad aggiungersi quello per le conferenze, anch’esso studiato per operare in simbiosi o in autonomia.
Dall’ingresso principale oltre ai servizi di prima accoglienza, come detto, si può accedere al blocco conferenze o al blocco fornace, oppure salendo di livello, direttamente al museo/ponte.
Il secondo blocco, separato dal primi tramite un giardino in cui spicca i la canna fumaria della ex fornace, racchiude la biblioteca tecnico/storica ed i padiglioni espositivi.
La biblioteca, divisa in due settori distinti ed disposti su due livelli differenzi, opera con il vicino centro ricerca, in modo da fornire dati di reperto/storici o le informazioni sviluppate direttamente nel complesso, abbattendo così i tempi di assimilazione delle informazioni da parte di enti terzi; anche il centro espositivo si sviluppa su due livelli: nel primo sono posizionati degli stand fissi affittabili alle vicine fabbriche in modo da esporre i prodotti, mentre al secondo livello è presente una zona expo temporanea, in cui organizzare mostre e/o esposizioni a tema.
Il meccanismo del centro espositivo, ma anche del restante complesso, è estremamente semplice: in cambio di uno spazio espositivo (temporaneo o permanente) si ha una retribuzione che abbatte le spese di costruzione e al tempo stesso valorizza le attività commerciali limitrofe.
Il terzo blocco, posto ad una quota più bassa rispetto al piano base per esigenze tecnico/costruttive, contiene il centro ricerche, diviso in due comparti: il primo comparto ospita gli uffici, gli spazi per le ricerche informatiche, le aule didattiche e delle piccole sale test per i campioni; il secondo comparto ospita le sale di prova tecnica vere e proprie, in cui sono testate le nuove tecnologie e i materiali sviluppati nel primo comparto e le sale server in cui depositare i dati raccolti.
Il centro ricerche è stato sviluppato grazie alla consulenza dell’ENEA, la quale ha fornito importanti dati sulle nuove tecnologie sperimentali nell’ambito delle costruzioni e su come predisporre un centro altamente efficiente e funzionale.
Grande attenzione è stata posta nella progettazione degli argini adiacenti al complesso che, oltre ad rendere possibile l’accesso diretto al fiume, sono predisposti in una serie di terrazzamenti che in caso di piena del fiume, grazie al principio dei vasi comunicanti, tendono a far defluire le acque nei terreni limitrofi; altra “particolarità” è nascosta nel primo livello del ponte: questo percorso sull’acqua, ispirato al ponte Khaju Bridge di Isfahan in Iran, posto quasi a quota fiume, permette l’attraversamento pedonale, ma anche la possibilità di “sedersi sul fiume” e nasconde in esso una serie di chiuse, le quali, grazie ad un meccanismo di rilevamento del livello del fiume tramite sensori a galleggiante, sono in grado di ruotare ed arginare il flusso delle acque rendendo praticabile il ponte anche in situazioni di piena.
Sulla sponda est del Tevere, sono posizionate le strutture del porto, per la pesca, l’ingresso al complesso ed i negozi; a differenza delle ultime tre strutture elencate, il porto è a quota fiume, ed ospita un molo ed un’area di rimessaggio in cui stipare le imbarcazioni provenienti via fiume da ponte Milvio, in maniera da rendere il complesso raggiungibile con ogni mezzo di trasporto.
Con lo stesso principio dei centri espositivi, sono organizzati i negozi e la struttura per la pesca, la quale sfrutta un bacino d’acqua esistente (un ex pozzo di estrazione di argilla).
All’ultimo livello del complesso, lungo il ponte è posizionato il museo “sullo sviluppo delle tecniche costruttive”, il quale connette anche le strutture poste ai livelli inferiori; il museo è organizzato su un unico livello con minime differenze di quota interne, e si “aggrappa” alla fornace ed all’ingresso principale, tramite un gioco di rampe e doppie altezze, rendendolo visibile anche a chi entra a quota terreno.
Una particolarità della struttura/museo è la capacità di “sfondare” la cortina industriale, innestandosi direttamente nel tessuto urbano e rendendo raggiungibile il complesso anche agli abitanti del limitrofo quartiere di Colle Salario.

|