Dieci e Lode

Antonino Saggio Home
 

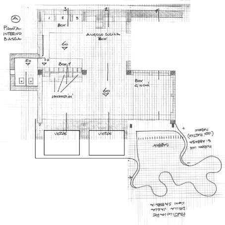
Cuore Verde. Scuola materna  a Kerobokan, Bali di Giovanni D'Ambrosio

Le immagini del Rural studio (Costruire Novembre 2002 >) hanno colpito l'immaginazione non solo di chi ha scritto quelle righe. La ragione del particolare interesse di Giovanni D'Ambrosio per quella esperienza appare evidente da questo straordinario Asilo che ha appena completato a Bali. D'Ambrosio opera con un budget limitatissimo (circa 10mila euro) ma riesce a far capire d'un colpo che cosa vuol dire fare una architettura felice.

Organizza il progetto su una invenzione. Si tratta di un'idea semplice  e forte  ad un tempo: una trave che, posta su un muro attrezzato lungo la metà dell'edificio, innerva l'intera composizione. In pianta il muro attrezzato che sorregge la trave divide i due ambienti in cui si articola la piccola scuola: su un fronte gli ambienti si appropriano dello spazio esterno con una serie di vasche per il gioco che allo stesso tempo delimitano il progetto, mentre dalla parte opposta corre un canale di raccolta e refrigerio che conduce ad una piccola vasca d'acqua. In sezione la trave sorregge da ambo i lati il tetto. Da un lato la falda è dolcemente inclinata con delle asole vetrate in sommità mentre dalla parte opposta il tetto ha la brusca impennata di una copertura che si articola in  due falde ad angolo acuto. La trave in cemento armato ha una sezione a "V" non solo per sorreggere  i travetti in legno delle coperture ma anche per accogliere e sollevare  un torrente di terra. La forma a "V" è  funzionalmente un  vaso che permette alla vegetazione di crescere rigogliosa e di coprire le poverissime lamiere grecate delle coperture, evitando il surriscaldamento e fornendo una prova di intelligenza progettuale. Un cuore verde anima così questa architettura e dà una nuova prova del talento inventivo e sensibile di D'Ambrosio. Un nemo propheta in patria che sta disseminando la lontana Bali di opere bellissime.

..

Dice: "Le piante  si distendono su  una  maglia di fibra naturale posta a 40 cm dal tetto, che sostiene le foglie e crea un  verde sopra la lamiera. La vegetazione produce anche frutta e ortaggi che hanno sì una funzione didattica, ma  regalano ai piccoli occupanti "merendine" non occidentalmente pre-confenzionate. Il sole, penetrando attraverso i vetri dei lucernari, è filtrato dalle piante e arricchisce di vibrazioni ora di ombra ora luce lo spazio dei bambini. Hanno collaborato alla redazione del progetto Claudio Ampolo e Marie-Cecile Bauz"
 Giovanni D'Ambrosio Roma <vanbergen_dambrosio@hotmail.com>


 


 

The work on your webis suberb !!!  I agree that its very Kahnian.  Its graceful forcefullnes is
beautiful. I envy this design.
Louis Sauer email a AS

The school on your website looks like a real piece of architecture and not
like the average environmentaly friendly banality.
Zvi Hecker email a AS


Altri dieci e lode                                                             Antonino Saggio Home