Graduation Thesis/Tesi di Laurea



VALENTINA PENNACCHI
Advisor A. Saggio.
 

Univ. La Sapienza, Facoltà di Architettura L. Quaroni Roma 2009

URBAN CELL
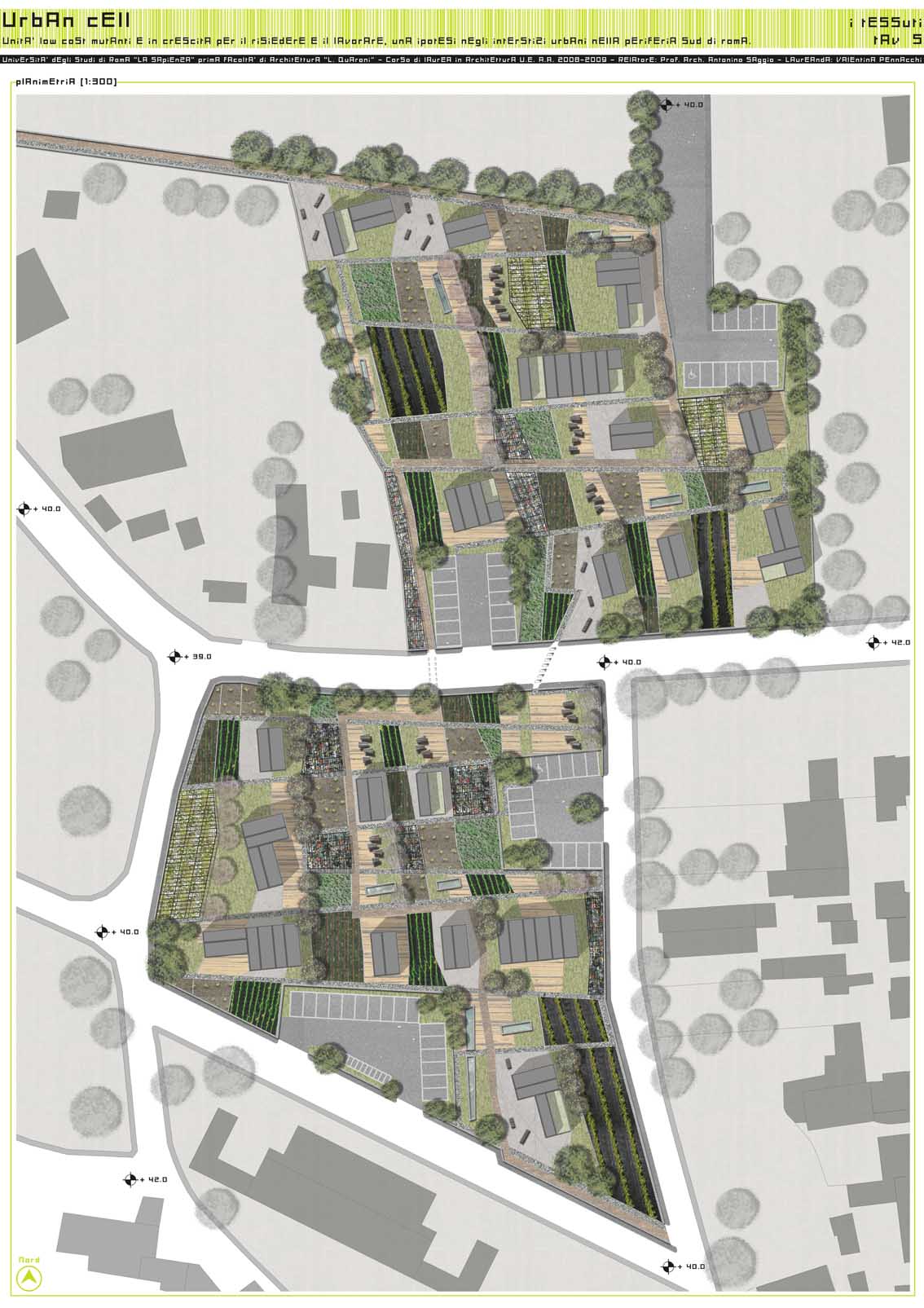
Unità low cost mutanti e in crescita per il risiedere e il lavorare. Una ipotesi negli interstizi urbani, nella periferia sud di Roma.


Valentina Pennacchi AA 07-08 discussa Giugno 2009 Relatore A. Saggio

Come operare con progetti a bassa densità in aree urbane marginali ma sottoposte a spinte edificatorie e speculative? La strategia proposta in questo caso propone un insediamento di caratteristica semirurale con abitazioni parizalmente autocostruite e con crescita programmata nel tempo. Si tratta di una strategia che permette di creare insediamenti a basso costo per giovani o nuovi immigrati che conservano e anzi valorizzano il verde interstiziale: un bene prezioso e da difendere della città di Roma.

Il progetto è tra i primi previsti all'interno della proposta di Urban Voids e sistematizza nelle prime tavole la strategia complessiva di questo intervento urbano

Il progetto propone un sistema urbano, architettonico e spaziale, da insinuare nelle smagliature della città, capace di creare una cerniera tra il costruito e i vuoti urbani, presenti in gran numero in questo brano di città. Il sistema sarà in grado di supportare “micro-elementi” di vita flessibile e mutevole per rispondere a una domanda sia nel breve che nel lungo periodo, un sistema per rispondere a tutte le esigenze dettate dalle nuove forme dell’ ”ABITARE” lo spazio pubblico e privato.

Le soluzioni dei problemi legati alla funzionalità dell’abitare e dello spazio urbano dipendono in primo luogo dalla considerazione delle necessità attuali di un utenza che ha modificato il proprio modo di rapportarsi all’ambiente domestico e a quello pubblico.

Il modello di sviluppo urbano tiene conto del continuo flusso di masse socialmente dinamiche. Questo comporterà la predisposizione di assetti edilizi mutabili e in crescita.
Le nuove forme urbane saranno capaci di lavorare su più dimensioni, come quella ecologica, nel risparmio e nell’uso dello spazio e delle risorse, sarà presente un network di spazi verdi, che definirà il sistema connettivo di spazi naturali e corridoi ecologici dedicati al tempo libero, ai percorsi ciclabili, allo sport. Contemporaneamente tali sistemi urbani saranno in grado di attivare un ciclo produttivo, grazie all’inserimento nell’area di numerosi orti urbani, capaci di porre rimedio seppur a livello locale, alle storture del sistema delle metropoli, contribuendo al recupero di aree abbandonate e degradate, educando a pratiche ambientali sostenibili, offrendo un punto di incontro e socializzazione per la comunità, indicando un’alternativa alle categorie emarginate dalla società moderna, infine "rallentando" i ritmi della società contemporanea.


 
 

Roma a_venire is the Book that collects the design projects and explains the overall urban social and design strategy to which this project belongs to. All details

Antonino Saggio Home| Teaching activity a "La Sapienza" Rome