Lo studio Atelier 5, fondato nel 1955 da Erwin Fritz, Samuel Gerber, Rolf Hesterberg, Hans Hostettler e Alfredo Pini e oggi allargato a sedici soci, è ben conosciuto nel mondo soprattutto per i suoi progetti residenziali, di cui il più famoso è l’Unità di abitazione di Halen completata nel 1961 e ormai citata anche in diverse Storie dell’architettura.

Atelier 5, Siedlungen und städtebauliche Projekte presenta analiticamente tutti i progetti residenziali: ventidue opere che vanno dal piccolo edificio con cinque abitazioni di Flamatt 1 (1957) al progetto del quartiere di Kronsberg ad Hannover per 20000 abitanti del 1993.
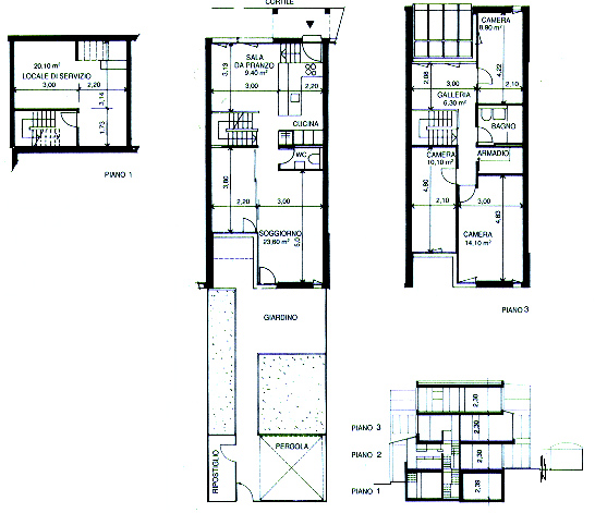
Il libro, curato anche nei dettagli dagli stessi progettisti, è notevole innanzitutto per la mole di documentazione e per la chiarezza dell’impianto. Ognuna delle opere è descritta in un testo dettagliato e analitico. Accanto a belle foto, sia a colori che in bianco e nero, sono presenti tutti i dati quantitativi fondamentali e soprattutto molti grafici, a volte appositamente ridisegnati.
Particolare non trascurabile è
che i diversi progetti sono stati pubblicati nelle medesime scale di rappresentazione
e con una identica simbologia per cui il lettore può agevolmente
confrontare tra loro soluzioni diverse e individuare le linee evolutive
del lavoro.

Atelier 5 è fondato da architetti ventenni che si ispirano all’opera di Le Corbusier. Il linguaggio è sin dall’inizio basato su un comporre asimmetrico che nasce dall’articolarsi all’esterno della dinamica delle funzioni e non dalla sovrapposizione di presunti valori figurativi e simbolici. Il materiale prevalente è il beton brût che contrasta con la vegetazione, con i tetti in erba, con gli alberi che spesso circondano e sembrano erodere le costruzioni. Grandi superfici vetrate sono spesso racchiuse in telai che danno ritmo e profondità chiaroscurale ai fabbricati, ma a volte sono presenti episodi scultorei autonomi dettati da una occasione specifica: una scala che arriva sul tetto, una centrale termica, un balcone in forte aggetto. A questa impostazione di base, lentamente, gli architetti sovrappongono in quaranta anni altri temi e materiali: l’uso in qualche occasione dei mattoni Leca — come Herman Hertzberger — il prevalere del vetro sull’ossatura, il ricorso al legno nelle pareti ai piani bassi sui percorsi pubblici o nelle recinzioni.
Ma se il linguaggio si evolve su una
medesima base brutalista, più complessi e originali sono i legami
che Atelier 5 intesse con la lezione di Le Corbusier quando si esaminano
la filosofia operativa dello studio e soprattutto le soluzioni specifiche
via via adottate.

In Atelier 5 è centrale, come in Le Corbusier, la consapevolezza del ruolo etico dell’architetto. L’architettura è fatta per promuovere soluzioni ai bisogni essenziali degli uomini, bisogni che vanno interpretati, capiti, indirizzati attraverso la ricerca dell’architetto. Ma all’aspetto demiurgico del grande connazionale, Atelier 5 sostituisce l’abito del teamwork di origine gropiusiana. Base del loro progettare è quindi un decalogo di principi qualificanti (progettare in gruppi operativi senza sotto specializzazioni, articolare il progetto "dall’interno all’esterno", liberare la progettazione da fattori casuali in maniera da essere rigorosi e giustificabili ed altri) che come un contratto-programma lega gli aderenti e direziona gli sviluppi del progetto che porterà sempre e solo la firma comune. Ma, daltronde, tutto lo studio opera come una cooperativa anche attraverso la livellazione dei compensi, il reinvestimento degli utili in nuovi progetti e attraverso una schiettezza di comportamento completamente estranea alle mode dello star system internazionale.
Ma se la rigorosa adesione alle modalità
del teamwork segna una evidente diversità dal protagonismo
di Le Corbusier, quando si va alla sostanza dei progetti emerge il dato
storicamente rivelante del contributo di Atelier 5 all’housing.
Il punto di partenza della ricerca è certamente l’Unità di abitazione: un edificio alto diciotto piani, sollevato dal suolo, con una dotazione di servizi a un piano intermedio o sul tetto per circa 1800 persone e contraddistinto da abitazioni su due piani che si sovrappongono ad "L" lungo un corridoio centrale.
Atelier 5 fa tesoro in moltissimi aspetti di dettaglio e di organizzazione del modello lecorbusieriano ma ne ribalta gli assunti. Invece di un edificio alto e sollevato dal suolo su pilastri ribalta le quantità in orizzontale.

È la grande novità del celebratissimo progetto di Halen, dove una serie di filari di case a schiera si innesta sui pendii di una collina alle periferia di Berna. Questo ribaltamento sul suolo dell’ Unità di abitazione verticale, porta con se molte conseguenze: il tessuto diventa il principio organizzatore invece dei volumi isolati sotto la luce; la morfologia di strade, piazzette, punti di sosta si sostituisce al vassoio su cui innalzare il fabbricato; la personalizzazione e l’appropriazione degli spazi a terra (giardini, patii, terrazze erbose) si sostituisce all’idea del verde collettivo e impersonale che circondava l’Unitè e le sue immiserite repliche in tutte le periferie d’Europa.

Nel libro si può cogliere l’evoluzione e l’approfondimento di questa impostazione, poi denominata "Case basse ad alta densità", soprattutto attraverso i progetti, limitrofi a Halen, di Thalmatt 1 (1974) e Thalmatt 2 (1985). In particolare in quest’ultimo le idee originarie si arricchiscono anche di altre componenti come una progettazione per moduli tridimensionali aggiunti a misura dei futuri utenti, un sensibile aumento della densità attraverso la sovrapposizione di più alloggi tutti però serviti autonomamente da terra, una sempre più piena padronanza di soluzioni particolari come la luce zenitale o gli spazi di mediazione tra interno ed esterno.

Se i progetti nel sobborgo di Thalmatt
indicano una strada che privilegia il tessuto e il contatto con il suolo,
il libro ci permette di scoprire un filone di ricerca meno noto e appariscente.
Nei progetti realizzati a Friburgo si procede a una disarticolazione dall’interno
dell’edificio di appartamenti. Soprattutto in Flamatt 3 (1987), la sezione
viene organizzata in gradoni per ricavare patii e percorsi e per fare in
modo che le terrazze di una fila di alloggi diventino giardini per l’altra.
Un’ispirazione che rimanda alle Casbah algerine cui, per altro, anche Le
Corbusier in una fase ha guardato con attenzione.

Accanto a queste due linee fondamentali
di ricerca (l’una verso il tessuto basso e continuo, l’altra verso l’articolazione
della sezione di un edificio compatto), e a tanti altri progetti importanti
(come quello di autocostruzione proposto per il Perù o quello di
Ried W2 in cui due piazze sono interconnesse a quote diverse) emerge un
terzo filone di studio, che si è sviluppato con particolare forza
nei piani urbanistici prodotti a partire dagli anni Ottanta.


Conversando con gli architetti svizzeri, Hertzberger dice: "Non c’è giorno che non penso a Le Corbusier". Una frase che forse si attanaglia a molti, ma che certo raramente ha un senso più acuto che in Atelier 5. Il lavoro dell’architettura è missione sociale e ricerca: sulle spalle dei grandi si porta avanti un lavoro collettivo esteso a più generazioni.
Antonino Saggio
Home
Ringraziamenti
e Modalità di Citazione
Send a comment to the author / Invia un commento all'autore
Pubblicato originariamente su
Antonino Saggio
Vedi anche dello stesso autore
La cultura dell'abitare nel lavoro di Atelier
5
Edilizia Popolare, n. 228-229, luglio-ottobre
1993 (pp. 64-79).
ATELIER 5. FRIBURGO COMPLESSO RESIDENZIALe
Costruire, n.149, ottobre 1995 1995 (pp. 206-209).
Il libro cui si fa riferimento nell'articolo è
Atelier 5, Siedlungen und städtebauliche
Projekt
con un saggio di Kenneth Frampton,
Vieweg, 1995
back to Index
