Le case unifamiliari di Giuseppe Terragni: il motivo del telaio
di Antonino Saggio
Lezione al Laboratorio I,
professoressa Domizia Mandolesi
Sapienza Università di Roma
14 aprile 2021
GIUSEPPE ERCOLE ENEA
Biographical Notes 1904-1943
Filmati You Tube della produzione di Giuseppe Terragni
Terragni con Le Corbusier e Bardi nel 1933

Panoramica della produzione di Terragni Works
Web view
Casa Unifamiliari
casa sul lago per l'artista 1932
villa del floricoltore
Villa sul Lago de 1936
Villa Bianca
I viaggi del telaio ( Frame)
What is the frame?
1. Frame as Structural System
![]()
![]()
2. Frame as Functional container of Porticos, Walkwaydeck, Balconies ...
![]()
![]()
3. Frame as Climatic Solar Device
![]()
![]()
4. Frame as Modular Element
![]()
![]()
5. Frame as Giant Order, Frame within a frame
6. Frame as Window, Perspectival device
![]()
![]()
7. Frame as Partial View on a Movie Sequence
![]()
![]()
![]()
Lecture Terragni and the Frame
Officina del Gas
![]()
![]()
![]()
1932
![]()
Casa Toninello
![]()
Casa Rustici
![]()
Asilo Sant'elia
![]()
![]()
![]()
Bianca
![]()
![]()
![]()
![]()
Bibliografia specifica
leggi in pdf
Antonino Saggio, Villa Bianca. Un capolavoro di trasgressione
Antonino Saggio, Five Hiuses by Giuseppe Terragni
...due corpi parallelepipedi per i forni veri e propri). Qui fa la prima comparsa un tema che sarà tipico del Terragni maturo: la caratterizzazione della facciata attraverso la struttura a telaio. Non vi è la separazione tra telaio ed edificio, che sarà tipica delle opere milanesi e sviluppata nelle ultime conseguenze nella villa Bianca, ma è presente la stessa asimmetria tra l'articolazione della trama
strutturale rispetto all'effettiva massa volumetrica che si ha nel fronte principale della Casa del fascio p.22
...Il vuoto centrale si rivela come il negativo del solido entro cui è ricavato, come se volume pieno e vuoto interno facessero parte di uno stesso mondo e si richiedessero anche nell'uso del telaio strutturale a vista l'uno con l'altro .p. 44 , e con la riucitura del telaio nell'ultima campata). p.45
...il terzo, ideato a ridosso del conflitto, non fu mai realizzato. Ricostruito ed esposto in modello alla Biennale veneziana del 1976, il primo progetto rimane una delle opere più pure del Razionalismo: in una costruzione di acciaio e vetro si incrociano felicemente alcuni motivi tipici di Terragni: nella Rustici il telaio diventa un grande bowwindow che si appende al di sopra del seminterrato p. 59
... Il sistema di comporre la facciata della Toninello basato sul telaio (anche se invertito è il rapporto avanzamento arretramento) sembra identificare una sintassi p. 60
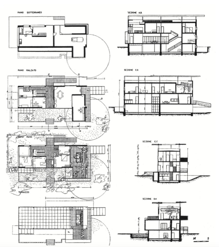
...La villa Bianca è preceduta da una serie di progetti di case unifamiliari: un tema ideal p. 66
. È l'incorniciatura a telaio nella facciata d'ora in avanti «il telaio» che aveva fatto la sua prima comparsa nel retro dell'Officina del Gas, ma che è il motivo saliente della Casa del fascio progettata negli stessi mesi. Il telaio consente di avere una doppia parete: una sul fronte esterno (a protezione dalla luce e che delimita logge o portici) e l'altra, più arretrata, che raccoglie gli infissi.
la parete stessa a racchiudere il volume, qui Terragni elabora il tema della doppia parete e del telaio. Invece del motivo a loggiato, l'architetto inventa un telaiogigante che raccoglie tutta la costruzione. 67
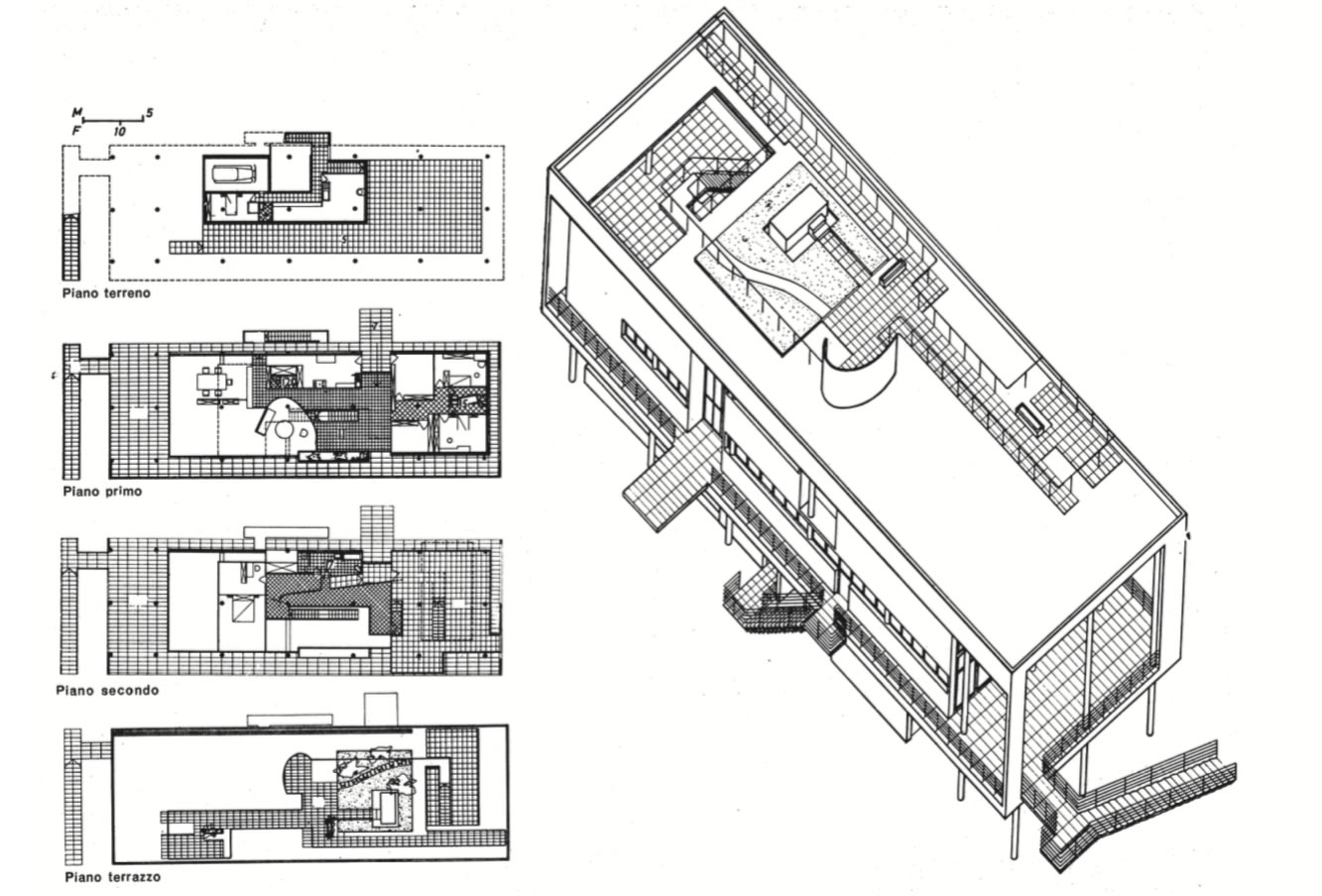
...Il telaio usato per ritmare, uniformare e dare chiaroscuro nella Casa alla V Triennale e trasformato in un macro contenitore nella Villa sul lago del '36 - compie un altro passo della sua evoluzione. Diviene un elemento antagonista al volume, si svincola così dagli usi precedenti per afiancarsi agli altri elementi «liberi» della casa. La rampa, le scale, la pensiline, il balcone insieme al telaio cospirano la messa in crisidel volume: lo scontro volumetelaio del fronte su strada, la rampa di accesso sul retro, le pensiline del tetto che si proiettano fuori dalla linea della casa, l'aggetto del balcone sull'ingresso attaccano, sbilanciano, spingono in tutte le direzioni degli assi cartesiani il blocco steeometrico. Perché, naturalmente, in questa nuova interpretazione, il volume non è più sospeso ma appoggiato, ancorato direttamente al suolo, p. 69 «coricato» come diceva Pagano.
..L'asilo condivide con la villa il ruolo indipendente che gioca il telaio, ma assume nel rapporto con la natura un nuovo accento.
L'inizio è segnato dalla presenza, sulla strada, dello stesso telaio adoperato nella villa Bianca: un elemento antagonista al volume pieno, un
pezzo di struttura sbilanciata nello spazio. Il telaio però non serve solo ad attaccare l'unitarietà del volume, a metterlo in crisi
dinamicamente, ma è il prodotto della pressione esercitata dal giardino. È un segnale del cuore verde del progetto. E al giardino il telaio
rimanda: nell'allineamento e nella medesima larghezza quindi nei reciproci traguardi visivi e nella preenza di una striscia di verde a
prato incisa nel pavimento
.... di progettista particolarmente affilati: la ripartizione planimetrica in tre fasce, il telaiologgiato, il telaiogigante, il telaioantagonista e,
naturalmente p. 84....Il prospetto a nord è una delle composizioni più belle di Terragni. Un blocco solcato da tre lunghe asole si distacca dalla parete retrostante
sbilanciando l'architettura. Dietro al corpo avanzato, il sistema della tettoia e delle pensiline dell'attico si innalzano verso il cielo in una
nuova interpretazione del telaio.p. 85Citazioni provenienti dal volume A. Saggio, Giuseppe Terragni Vita e opere, Laterza 2004
Corso Terragni Futuro
La Sapienza 2004
VAI ALLA PRESENTAZIONE INTEGRALE DEL CORSO TERRAGNI FUTURO >>>
Go to the spot on Schools 2005 >>
Gallery di alcuni lavori esemplificativi

http://xoomer.virgilio.it/aiko_2/index.html
http://pablomartinezdiez.com/works/hypersymbol/hypersymbol/index.htm
http://xoomer.virgilio.it/simomax/PROGETTO.htm

Film Terragni Futuro
Una frame del film appositamente "Terragni Futuro"
Down load del film riassuntivo del corso, con estratti dei lavori degli studenti 8 minuti 180 mega >>>
