Fortuna e sfortuna critica del Danteum di Giuseppe Terragni
di Antonino Saggio
Ordine degli Architetti Roma e Provincia
Giornata di Studi Palazzo Rospigliosi Zagarolo 24 settembre 2021
Ascolta audio della conferenza 54m
in alternativa audio via Facebook
Thomas Schumacher 1941-2009
opera del 1980 anticipato da Parametro del 1976
Schumacher dice
una cosa molto interessante nel libro. Dice che è stato
interessato e colpito del Danteum attraverso la pubblicazione
della relazione nel numero di
Architettura cronache e storia del 1968. Numero attebzione con
testi di Renato Pedio
da questo si desume che o Colin Rowe non ne fosse a conoscenza del
Danteum cosa quasi tragica perchè questo progetto è una delle
prove più assoluto delle sue teorie! oppure è Schumacher che
gliassa su questo punto. Collage city è del 1978.
La
relazione!
Architettura come prodotto di ricerca
Terragni e Lingeri

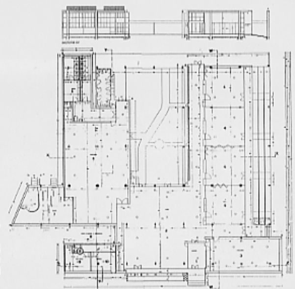
Viste del plastico costruito
presumibilmente all'inzio del 1940 in scala 1: a 50
Schema TRIPARTITO ricorrente in molte opere di Terragni
Nel danteum pur potendovi riccore per consuetudine e affinità con il poema non lo adottta
«Glorificare un grande valendosi dell’esaltazione di una sua opera che fu definita divina, determina forse per la prima volta nella breve storia dell’architettura moderna un fatto di estrema importanza.
Si tratta di ottenere il massimo
di espressione col minimo di rettorica, il massimo di commozione
col minimo di aggettivazione decorativistica e simbolistica. (…) È
il collaudo che si vuol tentare della nuova architettura sul banco
di prova della triade così piena di incognite e di equivoci
stabilita dalla monumentalità, dal simbolismo, dalla aulicità»
Pietro Lingeri, Giuseppe
Terragni, Relazione sul Danteum
[sono brani ben messi in evidenza da Vitale vedi sotto, che fa un
buon saggio forse per scusarsi della censua deldanteum su
Rassegna, censura forse del direttore?].
Diagramma
Disegno di terragni attribuito al Concorso del 1937 per il palazzo dei Congressi
Nella mia didattica - da cui deriva le imagini di cui sopra- vi è un ciclo volto a cogliere l'aspetto "diagrammatico" di alcuni porgetti rilevanti. Lo scopo dell'analisi diagrammatica e comprendere il campo di variazioni "compatibili". questo esercizio a volte aiuta anche alcuni aspetti del progetto finale. Il libro che tratta dell'argomento è sotto indicato
Strutture gerarchiche prima che il Bim si chiamasse cosi
Strutture gerarchiche nella ricostruzione e nell'analisi critica dell'architettura. L'esempio del Danteum di Terragni. di Antonino Saggio
Archimidia 2 marzo 1994 in rete
Fortuna e sfortuna critica
per la citazione bibliografica completa
vedi la Bibliografia in basso
Renato Pedio 1968
Zevi 1986
Marcianò 1988
Giulio Carlo Argan, Relazione, in «L’architettura. Cronache e storie», a. XV, n. 163, «Atti del Convegno ‘L’eredità di Terragni e l’architettura italiana 1943-1968’»), maggio 1969, pp. 6-7
Antonino Saggio 1995
LEGGI LA BIBLIOGRAFIA
ANCHE PER RIFERIMENTI COMPLETI GLI ALTRI SCRITTI
Leggi la lista di conferenze articoli e scritti
di
Antonino Saggio su Terragni
LUCA RIBICHINI 2015
"Danteum: la forma di un pensiero."
seguendo il Convivio: "letterale, allegorico, morale, anagogico. Così forse dovremmo fare anche noi seguendo la relazione di Terragni, cercando di definire i vari gradi di lettura nell’edificio stesso, un lavoro ancora da investigare e ultimare in modo esauriente e definitivo. "
In Giuseppe Terragni a Roma - Catalogo della mostra a cura di F. Mangione e L. Ribichini, Prospettive edizioni, Roma 2015 (pp. 76-79)
Daniele Vitale 2013
Monumentalità, simbolismo, aulicità nelle architetture di Giuseppe Terragni. Daniele Vitale in ARC 2013
LA relezione Integralmente è qui contenuta.
In realtà il più critico sul Danteum è forse Gabriele Milelli nella sua scheda nellOpera Completa a cura di Giorgio Ciucci.
Milelli sottolinea più volte l'incompltetezza ed inesattezza dei grafici, l'incoerenza tra prospettive e pinate. La decisione di porre una serei di colonne lungo la parete dell'inferno sullla cote che il 2vletro" muro alla fine della sequenza per arrivare anche alla forte critica del termine Tempio, visto che è più un a esperienza di percorso che un luogo, per non parlare dello sdegnosorifiuto dell'attribuzione di schumacher al solo Terragni dell'opera..
.ecctera.
In precedenza lo stesso Milelli, in occasione del convegno di Vincenza dedicato a Terragni aveva tenuto una relazione "completamente" diversa tutta basat sullo studio analitico dei rapporti numerici e proporzionali,
La
Cosa fa Terragni? raccontarlo brvemene dal mio punto di vsita. Invvece di sedersi sul noto e consolidato dello schema tripartito dei tre cantitici lo ribala
La mostra su Terragni organizzata a Como del 1949, contestualmente ai CIAM di Bergamo, fu visitata da Le Corbusier che apprezzò la sua opera; LC aveva conosciuto Terragni nel CIAM del 1933 di Atene.
Disse che Terra era un fratello di una lotta comune e oservo comolta attenzione il grande plastico Del Danteum. Se ricordo senza dire altro (cfr. Zuccoli)LUC
GABIRELI Milelli in Ciucci a cura di Opera Completa Electa 1996
G.M. (Gabriele Milelli), 1938-1940. Progetto per il Danteum a Roma, in AA.VV., Giuseppe Terragni. Opera completa, a cura di Giorgio Ciucci, Electa, Milano, 1996, pp. 565-575
Documentazione: Museo Virtuale
____________________________
Appendice su Terragni
____________________________
Filmati You Tube della intera produzione di Giuseppe Terragni
Bibliografia specifica
leggi in pdf
Corso Terragni Futuro
La Sapienza 2004
VAI ALLA PRESENTAZIONE INTEGRALE DEL CORSO TERRAGNI FUTURO >>>
Go to the spot on Schools 2005 >>
Gallery di alcuni lavori esemplificativi

http://xoomer.virgilio.it/aiko_2/index.html
http://pablomartinezdiez.com/works/hypersymbol/hypersymbol/index.htm
http://xoomer.virgilio.it/simomax/PROGETTO.htm
Film Terragni Futuro
Una frame del film appositamente "Terragni Futuro"
Down load del film riassuntivo del corso, con estratti dei lavori degli studenti 8 minuti 180 mega >>>
