
Antonino Saggio
Home
Corso Home
Pagine a cura del docente
A. Saggio home page
http://www.arc1.uniroma1.it/saggio/
Educational Blog
http://antoninosaggio.blogspot.com/
YouTube Station
http://www.youtube.com/AntoninoSaggioLa lezione si tiene il 1 dicembre
la consegna si tiene il giorno 12 dicembre
Lezione: Principi di organizzazione
Distributiva
ovvero la Macchina funzionale dell'edificio, il Motore
1. Il primo principio chiave è che il flusso "processuale" (Ex funzionale) delle attività non è direttamente tradotto in decisioni architettoniche.
Le relazioni con il bang e con il programma sono attente e precise, ma mai automatiche.
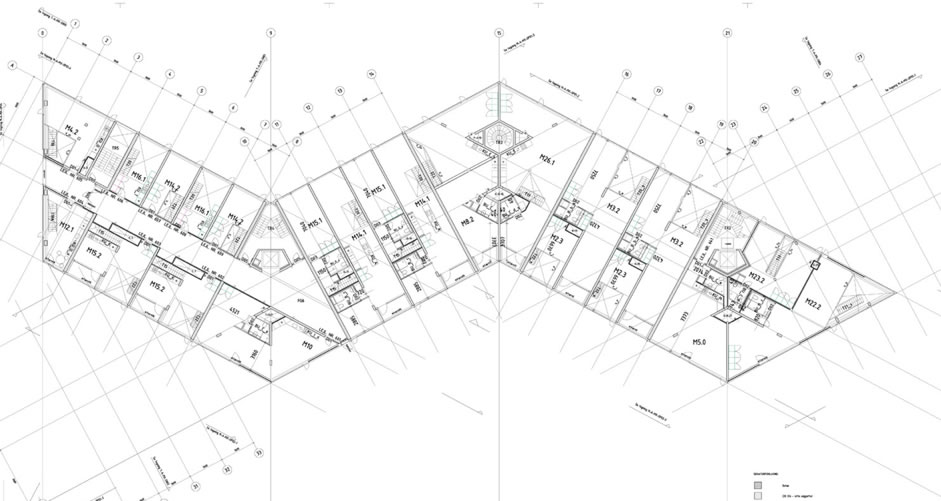
Typycal distribution Scheme with flow, adjacencies and proportianal surface area
si può leggere con bibliografia "Louis Kahn il Bach dell'architettura"

2. Il secondo principio chiave è la differenza tra servito e servente
Sauer si può leggere questo articolo con bibliografia, oltre che in Architettura e Modernità >>
oppure In Inglese
Di più su Penn's Landing square
Articolo di Gaetano De Francesco che sviluppa il tema della "vitalità degli spazi di Distribuzione"
Guardate anche il lavoro dei Big Architects. per esempio questo VM houses
Vedi il progetto dei BIG A new York dal Foto o dal sito
https://www.archdaily.com/794950/via-57-west-big

Servente all'esterno a caratterizzazione della forma architettonica e come strategia funzionale

Quando il servente diventa il bang
oppure quando il servente rimane servente, e il
servito si autonomizza plasticamente
Vedi
in Brochure 2: Sviluppo del progetto architettonico di Massima
Leggi il mio articolo Dal fiume alla città su questo progetto
3. Il terzo principio è "la conquista del centro"
http://www.arc1.uniroma1.it/saggio/Bibliografia/Citazioni/Gehry.html
vai in Academia.edu per il FREE DownLoad
Vedi il progetto in maggiore dettagli
La spina centrale ad "L"

La Galleria aperta sulla corte e che alle spalle distribuisce le varie parti del programma


Il progetto di Un Studio che abbiamo già incontrato è un
imporante esempio di "conquista del centro".
La particolarità di questo approccio più contemporaneo consiste
nell'intessere "un diagramma" variabile (in questo caso il
continuo intreccio tra i quattro spazi principali) e non una
geometria fissa
Vai dedicato al Museo Mercedes di UN Studio
Progettazione accurata spazi interni
Carme Pinos vai al sito
Guardate come Carme Pinos mette uno schema di "scacchiera" alla base di ogni progetto. Quello che vedete è infatti uno schematizzazione delle possibili variazioni che può avere quella pianta
Studiate con Attenzione le piante!!!
Guardate questa foto! (che faccio negli spazi interni..?)
Ci sono almeno tre o quattro trucchi .. li trovate?
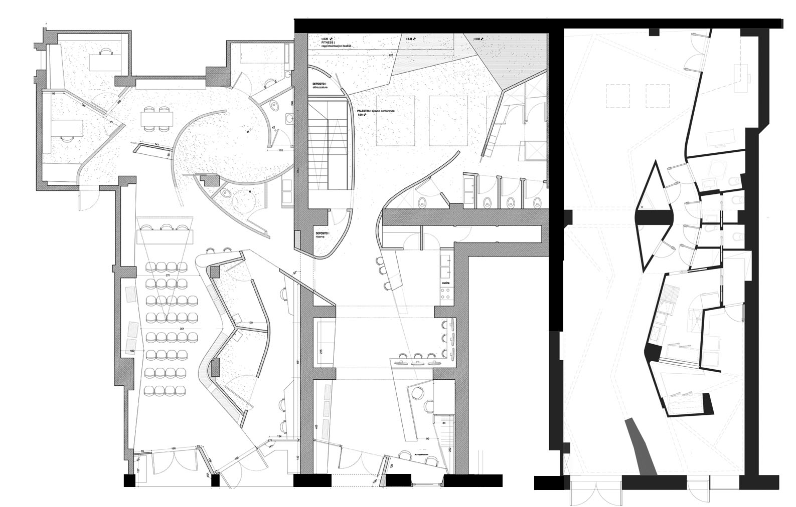
Architetto Rosetta Angelini, Spazio "civico zero" via dei Bruzi,
Roma (sinistra)
Architetto Rosetta Angelini, Spazio "Galleria come_se" via dei
Bruzi, Roma (destra)
Tavola Grafica redatta a cura di Crilo, basata su una combinazione tra SketchUp e Illustrator/Photoshop
Esempi di tavole Tipo brochure
tutto il lavoro >DelGrandeCarta
Costi ed esempio tavole Tipo Brochure
Tutto il Lavoro di Lorena Greco e Cristian Farinella >>

imagrini 2010
TO DO: Consegna per Lunedi 12 Dicembre dovete preparare "Una presentazione" importante che è divisa in fasi:
A partire dalle 14:00 in
aula vanno disposte almeno 4 tavolette
A3 Oppure di formato A1 che riassumono il progetto ad oggi
e che presentino anche gli esiti delle ultime richieste
vedi categorie "C" Sotto indicata.
VOGLIO CHE LE PRESENTAZIONI SIANO FATTE CONGIUNTAMENTE AL BODY IN
COPPIA- tutto viene disposto sui tavoli modalità mostra - al
solito spedite a Gaetano per semelzione
Ogni tavoletta va siglata con Titolo Progetto, AR n. (numero di
Aniene Rims) Nome e cognome
Nel Blog sono pubblicate le "minime" 4 tavolette
preparate più eventualmente altre.
La preparazione delle tavolette può essere anche tradizionale (e
poi scannerizzate e messe nel blog).
E' benvenuta la scacchiera e il plastico del contesto già
richiesto con la morfologia del progetto e possibilmente in
azzurro i sistemi idrici adottati .
La presentazione è anche una consegna indispensabile per il
proseguimento efficace del laboratorio sarò riportato
nell'indirizzario.
Chi non presenta si può far presentare il lavoro da un Alias /
Buddy
La presentazione sarà valutata Con Sufficiente o Insufficiente:
Inoltre sarà presente la firma del docente a convalida della
presentazione sulle tavolette.
Le tavolette andranno consegnate all'assistente per ulteriore feedback!
Cercate di utilizzare le principali parole chiave che hanno organizzato la lezione
In particolare
Organigramma funzionale o Diagramma a blocchi , Prossimità o Adjacencies Servente servito, Core, Conquista del centro eccetera
Nella presentazione dovranno essere incluse in maniera aggiornata, i materiali già discussi alle presentazioni precedenti e cioè
A. Il concept dell'edifcio dal punto di vista del programma funzionale.
A1.Titolo del progetto. Sottotitolo esplicativo.
A2. Uno o due paragrafi che descrivono il programma funzionale e perchè secondo voi è importante nella situazione specifica
A3.Una indicazione in prima approssimazione, ma analitica degli spazi necessari allo sviluppo del punto A2.
A4. La pubblicazione come commento nell'area di Aniene Rims nel blog, ci potete andare dalla mappa corrispondente al vostro progetto. Dovete fare una dicitura come questa e appunto aggiungerla in un commento nel blog... Successivamente entrereanno nel post principale.2021 AR 78, The home of lost work. Scuola del cuoio, Chiara Spiga, Mail: chiara.spiga2013@libero.it, http://chiaraspigalabiv.blogspot.it/
A questi materiali, già redatti sono da aggiungere
B. Organizzazione e ricerca distributiva. Il funzionamento
B1. Diagramma a blocchi con indicate in percentuale le aree e le relazioni tra i diversi processi. Deve essere in scala, ma non uguale allo sviluppo progettuale. Pensare anche allo spazio esterno e ai flussi che potenzialmente possono attivare un ciclo di 24 ore su 24.
B2. Raccolta di almeno "tre" fotocopie provenienti da Manuali dell'architetto o da Regesti tipologici distributivi con indicate tre parti del vostro programma d'uso (esempio, mensa, cucina, blocco scale, parcheggio, libreria, residenza di parti che riguardano specificatamente il vostro tema progettuale)
B3. Schematizzazione al 500 e con colori (tipo brochure commerciale) del vostro progetto dal punto di vista dei processi con indicate approssimativamente le quantità
B4. Schematizzazione delle zone serventi e servite al 500 come fosse una macchina! elementi di distribuzione ed energetici (cioè servizi da quelli igenici a tutti di vario tipo)
B5. Applicazione corretta e dimensionata nello schema reale al 200 dei vostri tre schemi distributivi - dimensionali dal Manuale (cfr. B2)
e
C. Un plastico alla scala circa dal 1:200 al 400, a seconda dei casi, che rappresenti le scelte fondamentali dell'edificio dal punto di vista volumetrico. Potete di nuovo ricorre alla scacchiera. Magari inventandone una tutta vostra per studiare le varianti possibili dell'edificio ad una scala più ravvicinata
D. Opzionale
Alcuni di voi potrebbero volere provare a montare questo materiale "come se fosse una brochure" per far circolare il progetto. Sempre di più in molti aspetti e prassi dell'architettura contemporanea le prime proposte passano in forma di brochure o di rapporto di medi/ piccolo formato. Sono queste presentazioni-idee quelle che muovono il progetto in molti ambiti preliminari (raporti con i clienti, con le amministrazioni con i finanziatori)
In questo caso suggerisco il formato A4 ripiegato fronte retro, come il tipo più semoplice ed economico di brochure oppure altri a vostra scelti ma d facile riproduzione. Il formato16,83 x 26.03 permette di essere caricato e pubblicato in Lulu.com se volete provare corrsipondente a Giornale a fumetti
Infatti come vedrete
POTRETE PUBBLICARE ON DEMAND IL VOSTRO PROGETTO
questa opzione sarà aperta anche per il progetto finale per chi
sarà interessato
http://www.lulu.com/
Ecco due esempi di Brochure Particolarmente Convincenti
Brochure 1: concept e finanziamenti

Holzmarkt, Berlino rendering e immagine FSKA Architects
Brochure
2: Sviluppo del progetto architettonico di Massima
qui vedete Brochure semplici fatte dai laureati
in A4 Piegati
Una
Eckwerk Berlino
Scadenziario.
Ogni studente deve prepararsi ad avere le
revisioni in maniera seria e dettagliata
Queste revisioni saranno segnate in foglio a parte
Il plastico richiesto deve
essere funzionare come un plastico di studio, come fosse una
"scacchiera".
Non è un plastico di presentazione, ma di studio e verifica.
Quindi realizzare molti più pezzi di quelli necessari e fare diverse ipotesi studiando alterntaive spaziali, climatiche e contestuali
Cominciare a raccogliere le fotocopie dai manuali per essere informati delle specifiche necessità organizzative e distributive del vostro progetto specifico:
Per fare revisione è importantissimo che portiate anche il plastico di inquadramento urbano! per aiutare tutti a visualizzare la vostra situazione.
Vedi questo eccezionale esempio