aa


Laboratorio di Progettazione Architettonica IV
Facoltà di Architettura Sapienza - Università di Roma

 

Antonino Saggio Home
Corso 2013 Home

 


Pagine a cura del docente


A. Saggio home page
http://www.arc1.uniroma1.it/saggio/
Educational Blog
http://antoninosaggio.blogspot.com/
YouTube Station
http://www.youtube.com/AntoninoSaggio

 

Per Lunedi 28 Maggio dovete preparare "Una presentazione" importante:

Alle 8,15 in aula vanno appese almeno 4 tavolette A3 che riassumono il progetto ad oggi e che presentano anche gli esiti delle ultime richieste vedi categorie "C" Sotto indicata.
Attaccare le tavolette per affinità
Ogni tavoletta va siglata con Titolo Progetto, Urban Vods, Nome e cognome.
Nel Blog sono pubblicate le "minime" 4 tavolette preparate più eventuali altre.
La preparazione delle tavolette può essere anche tradizionale (e poi scannerizzate e messe nel blog). E' benvenuta la scacchiera e il plastico del contesto già richiesto
La presentazione è anche una consegna indispensabile per il proseguimento efficace del laboratorio. La presentazione sarò valutata Con Sufficiente o Insufficiente

Nella revisione dovranno essere presenti in maniera aggiornata, i materiali già discussi alle presentazioni Precedenti

A. Il concept dell'edifcio dal punto di vista del programma funzionale.

A1.Titolo del progetto. Sottotitolo esplicativo.
A2. Uno o due paragrafi che descrivono il programma funzionale e perchè secondo voi è importante nella situazione specifica
A3.Una indicazione in prima approssimazione, ma analitica degli spazi necessari allo sviluppo del punto A2.

B. La presentazione della vostra caratteristica chiave "Bang". Un paragrafo

B1. Una titolazione del concetto chiave.
B2. Un prodotto di natura "sintetica ed espressiva" a vostra scelta (schizzo, digramma, plastico, fotomontaggio a vostra scelta)
B3. Una sezione o più sezioni schematiche dell'edificio
B4. Una ipotetica organizzazione in pianta
B5. Un primo plastichetto di studio al 200 derivato da una scacchiera di carattere sperimentale (scala a piacere)
B6. Una Tavoletta che illustri i concetti ambientali e bioclamitici individuati nel vostro edifìcio e le relazioni con altri urban voids

C. Organizzazione e ricerca distributiva. Il funzionamento

A questi materiali, già redatti sono da aggiungere

C1. Diagramma a blocchi con indicate in percentuale le aree e le relazioni tra i diversi processi. Deve essere in scala, ma non uguale allo sviluppo progettuale . Pensare anche allo spazio esterno e ia flussi che potenzialmente possono attivare un ciclo di 24 ore su 24.
C2. Raccolta di almeno "tre" fotocopie provenienti da manuali dell'architetto o da regesti tipologici distributivi con in dettaglio distributivo indicate tre parti del vostro programma d'uso (esempio, mensa, cucina, blocco scale, parcheggio, libreria o di parti che riguardano specificatamente il vostro tema progettualeeccetera ecctera)
C3. Schematizzazione al 500 e con colori (tipo brochure commerciale) del vostro progetto dal punto di vista dei processi con indicate approssimativamente le quantità
C4. Schematizzazione delle zone serventi e servite al 500. come fosse una macchina! elementi di distribuzione ed energetici (cioè servizi da quelli igenici a tutti di vario tipo)
C5. Applicazione corretta e dimensionata nello schema reale al 200 dei vostri tre schemi distributivi -dimensionali (cfr. C2)

D. La presentazione delle principali carattaristiche BIO Climache contestuali come specificato dai docenti dei Moduli

Lezione: Principi di organizzazione Distributiva
ovvero la Macchina funzionale dell'edificio, il Motore

1. Il primo principio chiave è che il flusso "processuale" (Ex funzionale) delle attività non è direttamente tradotto in decisioni architettoniche.

Le relazioni con il bang e con il programma sono attente e precise, ma mai automatiche.

si può leggere con bibliografia >>

Typycal distribution Scheme with flow, adjacencies and proportianal surface area



 

2. Il secondo principio chiave è la differenza tra servito e servente

Sauer si può leggere questo articolo con bibliografia, oltre che in Architettura e Modernità >>

oppure In Inglese


pdf
or print

aa

a

Servente all'esterno a caratterizzazione della forma architettonica e come strategia funzionale


aa

quando il servente diventa il bang

3. Il terzo principio è "la conquista del centro"

a a

http://www.arc1.uniroma1.it/saggio/Bibliografia/Citazioni/Gehry.html


 

a


Lezione di Antonino Saggio Sapienza

La spina centrale ad "L"
Lezione di Antonino Saggio SapienzaLezione di Antonino Saggio Sapienza Lezione di Antonino Saggio Sapienza

La Galleria aperta sulla corte e che alle spalle distribuisce le varie parti del programma

Lezione di Antonino Saggio SapienzaLezione di Antonino Saggio Sapienza Lezione di Antonino Saggio Sapienza

Il progetto di Un Studio che abbiamo già incontrato è un imporante esempio di "conquista del centro". La aprticolarità di questo appraccio più contemporaneo consiste nell'intessere "un diagramma" variabile (in questo coao il continuo intreccio tra i quattro spazi principali) e non una geometria fissa

vai

a a

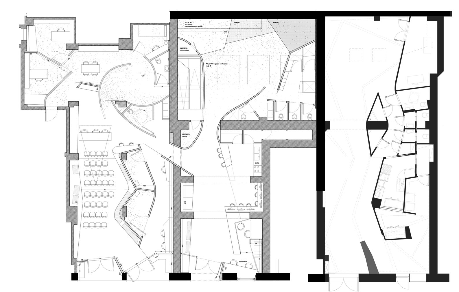
Progettazione accurata spazi interni

Architetto Rosetta Angelini, Spazio "civico zero" via dei Bruzi, Roma (sinistra)
Architetto Rosetta Angelini, Spazio "Galleria come_se" via dei Bruzi, Roma (destra)

Tavola Grafica redatta a cura di Crilo, basata su una combinazione tra SketchUp e Illustrator/Photoshop

Esempi di tavole Tipo brochure

tutto il lavoro >DelGrandeCarta

Costi ed esempio tavole Tipo Brochure

Tutto il Lavoro di Lorena Greco e Cristian Farinella >>


 

link

magrini 2010