
Laboratorio di Progettazione Architettonica IV
Facoltà di Architettura Sapienza - Università di Roma
Facoltà di Architettura Sapienza - Università di Roma
Antonino Saggio Home
Corso 2019 Home
Pagine a cura del docente
A. Saggio home page
http://www.arc1.uniroma1.it/saggio/
Educational Blog
http://antoninosaggio.blogspot.com/
YouTube Station
http://www.youtube.com/AntoninoSaggio
Quest'anno è la prima volta che formalizziamo un metodo basato "anche" sulla generazione delle alternative di progetto. E sembra molto strano a pensarci perchè proprio su questo metodo ho scritto un libro che si chiama "Using Goals in Design" del 1988 e poi sviluppato un capitolo del libro "Progettare La residenza" che è anche la mia dissertazione dottorale del 1990 poi pubblicata in libro molti anni dopo.
La base della generazione delle alternative naturalmente è "lo scopo", il goal. Nell'approccio che vi presentiamo questo scopi sono resi "espliciti" e addirittura resi espliciti anche in criteri. Questo vuol dire per esempio che se il progettista ha come "scopo" la flessibilità di un appartamento, questo scopo generico si esplica in un certo numero di criteri concreti. Posso ottenere lo scopo flessibilità solo con 1. una diversa localizzazione degli arredi, 2. posso farlo con movimenti di pareti mobili, 3. posso farlo attaccando o meno apparecchiature a impianti predisposti. Ecco tre criteri che concretizzano lo scopo flessibilità.
Tutto questo ragionamento ha una ricaduta troppo specifica nel vostro caso. A me serve e basta che capiate che la generazione delle alternative è un aspetto chiave della professionalità del progettista che deve essere in grado di capire l'estensione di possibilità che la propriaa impostazione progettuale consente mantenendo i principi fondamentali su cui si fonda.
Se questa estensione richiesta è troppo ampia, allora conviene proprio variare i principi fondamentali. Kuhn direbbere fare un salto di paradigma. Amplio fin che posso una impostazione di progetto, ma se non ci si riesce ne faccio "completamente" un altro..
A questo fine vedete cose dovete redigere per dopo le vacanze ed essere pronti il giorno 23 e 26 e 30 a sostenere una revisione che presenti proprio tre alternative. Il giorno tre si comincia con una nuova lezione.
Credo Che una ottima cosa sia leggere il capitolo 5
![]()
5 di Progettare la residenza:
Il libro è stato messo in free download per qualche giorno soltanto da questo link.
Registratevi su Lulu se non lo avete fatto, lo useremo in seguito!
Se volete il libro stampato lo potete prendere sempre da questi link o da Lulu stesso o da Amazon
![]()
![]()
Segui il processo dal Libro stesso!
Vedi Un esempio nella prgettazione con un cliente
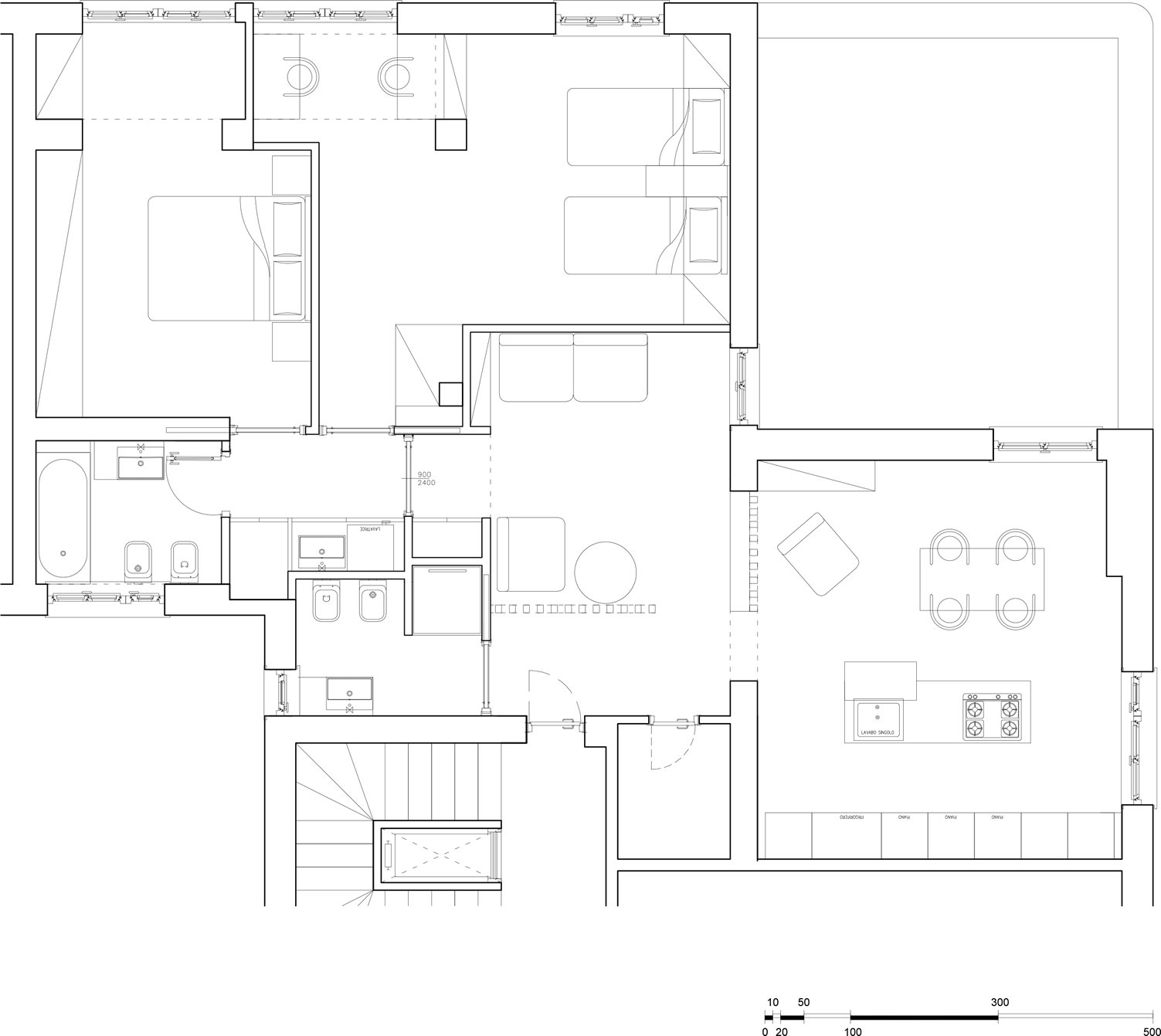
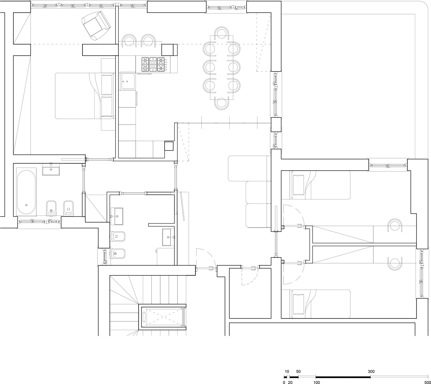
Crediti del progettoAttic in Tuscolano, Roma 2019
progettisti DFR Architecture https://dfrarchitecture.com
Project team: arch. Gaetano De Francesco , arch. Giulia CapoziFoto: Fabio Bascetta
![]()
![]()
![]()
![]()
![]()
![]()
![]()
TO DO:
Revisione Martedi 23 aprile e seguenti:
presentare tre alternative del vostro ex tempore (una può essere quella redatta in classe o sue variazione)
1. alternativa può essere redatta cercando di "ottimizzare" le relazioni con il contesto fisico e morfologico
(quale tesitura appare la più congrua, come al'interno di quella tessitura si organizzano i corpi di fabbrica per valorizzare le relazioni a vostro avviso significativo)realizzare piccoli schizzi esplicativi
realizzare una planimetria
realizzare una variazione della vostra scacchiera (modello)2. alternativa può essere redatta cercando di "ottimizzare" le relazioni f cosa è vicino a cosa che organizzazione appare la migliore
realizzare piccoli schizzi esplicativi
realizzare una planimetria
realizzare una variazione della vostra scacchiera (modello)
3. Scelte voi stessi lo scopo (bioclimatica, morfologia, imprinting eccetere)
realizzare piccoli schizzi esplicativi
realizzare una planimetria
realizzare una variazione della vostra scacchiera (modello)
Consiglio. Consigliamo di realizzare queste alternative cominciando ad usare un caad lavorando con vari layer!
Un layer rappresenta il contesto, altri delle tessiture, ogni layer una variazione.Noi consigliamo di Usare il programma Skectup scarica, che credialo sia il più adatto ai nostri scopi. Naturalmente se siete abituati ad usare altri programmi vanno bene.
Naturalmente il tutto può essere realizzato anche a mano su strati trasparenti.