Polis University
Master Lecture and Workshop 2019
Zaha Hadid at Polis University 2019
Lectures and Workshop
prof. Antonino Saggio
15-17 February 2019
II. The Weaved Infrastructure
Works











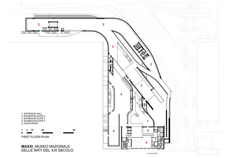
The Maaxi


..



figure ground
yes weaving
continupos elatiosnhipof forces
Napoli Afragola high speed station





What architecture wants to Be?
Architecture wants to be an infrastructure
if it is weaved with ground form
if no difference between architecture and ground
Then
wants to be an infrastructure.
It does not ount if "it is also" programmaticly an infrastructure
(bridge, a land form, a sky ramp a station) or just it imentally...
Google Map & Documentation
andare nella specifica di ciascuna casa in basso della foto e aprire in google per ciascuna opera

Documentation