Home Publications Lectures The ITRevolution
Antonino Saggio I Quaderni

Antonino Saggio Home
Il materiale proviene principalmente da
Antonino Saggio, Frank O. Gehry, Architetture residuali,
Testo&Immagine,
Torino 1997
a cui si rimanda per approfondimenti ed una esauriente trattazione
dei temi esposti.
Allestimento della retrospettiva The Architecture of Frank Owen Gehry, Curatore M. Friedman, Walker art center, Minneapolis 1986
La mostra (un onore raro e una manifestazione controcorrente) crea la sensazione di essere dentro una delle sue architetture. L'entrata è attraverso un'ogiva rivestita di scaglie e illuminata da lampade in formica, la scultura di un pesce volge la testa verso un lucernario, i mobili in cartoncino realizzati dal 1969 sono inseriti in una stanza fatta dello stesso materiale, le scale sono accompagnate dalle sue foreste pietrificate.




Museo e fabbrica della Vitra, Weil am Rhein, Germania 1987-1989
Opera di apertura di un nuovo ciclo. Le traiettorie nello spazio, la capacità di sagomare masse sinuose e dinamiche che rimbombano nell'aria e deformano l'atmosfera, le linee forze e le collisioni ricordano la plastica futurista. È architettura o scultura? Domande irrilevanti per Gehry, cui aveva già risposto Boccioni. "Nessuna paura è più stupida di quella che ci fa temere di uscire dall'arte che esercitiamo. Non v'è pittura, né scultura, né musica, né poesia, non v'è che creazione." Come dimostrano qui gli smaglianti interni.


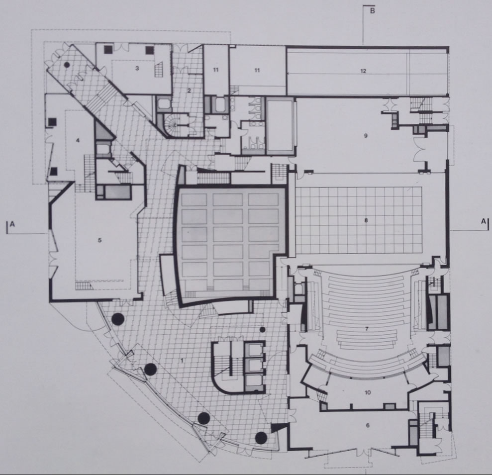
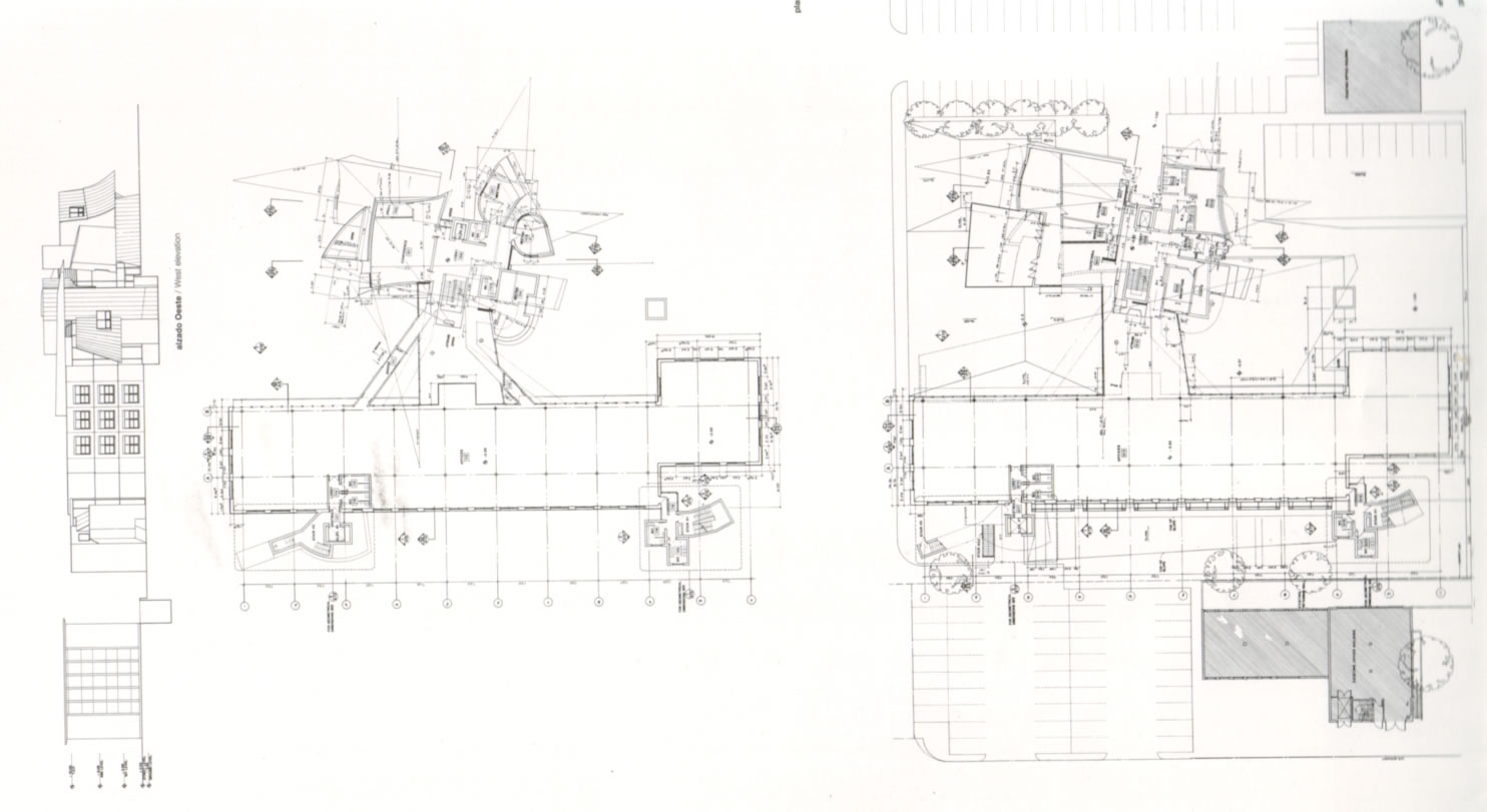
Edificio dell'American center, Parigi 1988-1993 61
"Capolavoro dell'architettura moderna" merita una trattazione a sé, anche per capire gli aspetti dell'ideazione e della costruzione e le vicende dell'abbandono del committente. In ogni caso, sull'angolo verso il parco, si è di fronte a una delle sue più incandescenti creazioni. Volumi ora circolari, ora prismatici, ora rettilinei, ora inclinati sbattono uno sull'altro. Prevale la pietra, ma l'innesto della pensilina in ferro e vetro lancia l'opera nell'atmosfera. Nell'atrio riscopriamo la capacità dell'antico Gehry di circondare con oggetti plastici lo spazio pubblico, questa volta, naturalmente, introiettato.

Sede degli uffici nazionali olandesi, Praga 1992-1997 76
Progetto complesso, sostenuto anche dal presidente
Havel, e oggetto di sondaggi pubblici. Il programma prevede funzioni commerciali
ai primi piani, uffici ai superiori, un ristorante in cima. Le caratteristiche
del lotto d'angolo implicano il tema della transizione tra le due vie e
la creazione di un punto focale percepibile anche dalla sponda opposta
del fiume. Gehry, neanche nella vecchia Europa, accetta compromessi. Studia
le torri e l'architettura della magica città, lo skyline, il fiume,
le viste e approda a un edificio caratterizzato da una conturbante deformazione
dell'angolo. Il barocco praghese è spremuto, alle soglie del Duemila,
a cercarne l'essenza.



Fabbrica Herman Miller Inc., Rocklin 1987-1989 60
I corpi si dipartono da un asimmetrico slargo centrale, popolato da edifici e strutture scultoree, per allungarsi e adagiarsi sul paesaggio. La mensa è di S. Tigerman, le sistemazioni esterne affidate a P. Walker e M. Schwartz echeggiano, soprattutto nei grandi massi lungo il perimetro, i motivi della Land Art.
Centro di arti visive, University of Toledo, Ohio 1990-1992
Il nuovo Centro si conforma su una "L" aperta verso il museo già esistente nel campus. Si determina così una corte di mediazione su cui affaccia un percorso galleria che organizza i flussi dell'edificio. Semplici rapporti cromatici e spaziali si instaurano tra il neoclassico edificio esistente, il vetro verde della galleria, i pannelli color piombo del rivestimento. Nella nuova piazza interna, i volumi vetrati richiamano i fenomeni di cristallizzazione dei minerali, mentre il perimetro esterno è la scorza di una splendente montagna artificiale.



Museo dei bambini, Boston 1991
Un lungo ex magazzino che ospita il museo funziona da fondale per un addizione scultorea che si articola come un percorso che, attraverso una serie di giocosi eventi, arriva prima alla banchina e poi a una piattaforma galleggiante sul canale.

Museo F. Weisman, Univ. of Minnesota, Minneapolis 1990-93
Pista di pattinaggio Disney, Anaheim 1993-1995
Due progetti opposti che rivelano la duttilità del suo progettare. La pista di pattinaggio è una montagna di ghiaccio ondulata, tagliata sui fronti come un igloo. Esterno minimalista in lamiera bianca. Nel Museo Frederick Weisman, Gehry crea una massa contorta e dilaniata che assume valore dalle rive del Mississippi come segnale o, di nuovo, manifesto. Gran parte del museo è contenuto in una grande e amorfa scatola: una strategia pratica e funzionale che, in questo caso, non porta a un esito d'insieme convincente .

1. Assemblare
2. Spaziare
3. Separare
4. Fondere
5. Slanciare
6. Liquefare
1. A.
In eVai al Link