
Antonino Saggio Home
Corso 2013 Home
Conclusione del corso.
Revisioni, Esame e Mostra finale, Elaborati per esame
Dati: Numero Urban Voids, Titolo, sottotitolo, Nome e cognome, Email, Blog address
esempio:
URBAN Voids: n. 5, inRETE. Centro produzione artigianato personalizzato e insegnamento software progettazione, Silvano Oliva, Mail:olivasilvano@gmail.com, http://olivasilvano.blogspot.it/
A. Revisioni.
Le revisioni del professore e dei docenti si svolgeranno in Aula G33 O altra disponibile ) a via GianTurco dalle ore 9 ogni lunedì sino all'esame.
B. Esame e Mostra Finale
15 luglio esame.
Si appende tutti e si presenta con decisione contestuale (cioè l'ordine di presentazione dipende da molti fattori, che si decideranno di volta)
16 Luglio Giornata tesi.. si vedrà il da farsi.
17 luglio continuazione esami e Verbalizzazione
Sui lavori già appesi si presentare con decisione contestuale -
Si verbalizza tutti insieme il giorno 17 LUGLIO . L'appello del Laboratorio IV, è in relazione alla attiva frequenza e all'effettivo superamento del pre-esame del 24 giugno con firma sugli elaborati intermedi e si svolge in sessione Unica. Non vi sono altri appelli per questo esame come annunciato sin dall'inzio del Corso.
Gli esami sono fissati con inizio Lunedi 15 Luglio ore 9. Venire in facoltà TUTTI alle ore 8 per appendere seguendo indicazioni dei docenti. AVERE SCOTCH TRASPARENTE (devo fare una ripresa video quello di carta viene male!). Gli esami sono in Via Gianturco Aula G 11 e corridoi adiacenti, si protarranno per tutta la giornata (il giorno 16 non sappiamo), Reinizieranno il 17 luglio e si protraranno per il resto della giornata con probabile verbalizzazione nell tarda mattinata primo pomeriggio della giornata del 17. Tutti i lavori sono appesi a partre dal giorno 15 e la commissione si muoverà per gli esami anche in rapporto a sovarapposizione con altri esami per minimizzare conflitti. Anche per questo, tutti i lavori devono essere appesi dalle ore 9 del giorno 15 e rimanere appesi sino al termine degli esami il giorno 17.
E' fondamentale che gli studenti attivino i processi di prenotazione automatica in segreteria secondo le modalità a voi note al sito info.stud "ULTIMO appello disponibile per il laboratorio IV del mese di Luglio"
Invitate i Clienti
Siccome tutti i lavori saranno appesi lungo i muri della facoltà, con i plastici su uno o più sgabelli, in questo caso accanto alle vostre tavole, è molto auspicabile che venga il vostro cliente a vedere il lavoro finito. Il cliente è benvenuto a partecipare con i docenti alla discussione sui progetti. Ricordatevi di presentare il cliente ai docenti e al professore. La maniera di procedere è la seguente. Invitare il cliente, se si vuole anche inviandogli la mascherina che sarà presto proonta, se il cliente arriva, a sua scelta il giorno 15 o la mattina del 17, portate il cliente in giro per la mostra e illustrategli brevemente due o tre progetti secondo voi interessanti, cioè fategli una visita guidata (è sempre fondamentale e utilissimo). Poi illustrategli in dettaglio il vostro progetto e se potete anche quelli interconnessi. Poi me lo presentate e noi faremo la discssione del vostro esame con il cliente presente. In altre parole il concetto è: quando il cliente è disponibile la commisione si sposta ad esaminare quello specifico progetto.
C. Contenuto dettagliato dell'esame finale.
Gruppi - tavola introduttiva di gruppo
Le presentazioni-esami si svolgeranno per macro aree e per gruppi omogenei di tre persone, MINIMO - Sei persone massimo a scelta degli studenti per affinità. Gli studenti possono formare il gruppo per "adiacenza" (preferbilmente) o altrimenti per attinenze tematiche. Il gruppo-presentazione deve darsi un nome-argomento ed iniziare la presentazione congiuntamente per poi passare alle presentazioni individuali
Il gruppo redige almeno una tavola sinottica A1 in cui a sua scelta individua il tema di affinità e propone alcune strategie ambientali di interconnessione tra i diversi urban voids proposti.
Si dà per inteso che ciascun gruppo tematico si formi su una negozione ATTIVA tra i progetti che condividano streategicamente la migliore possible relazione tra almeno tre progetti.
E' auspicabile che pur all'interno delle scelte compiute si indichino altri possibili progetti eventualmente da inserire in una connessione tematica o urbana generale
Tavole
Gli studenti redigeranno "un minimo" di sei tavole, nel formato A2 verticale ciascuna organizzata sui seguenti argomenti. Due plastici sono richiesti.
Le tavole devono essere "assolutamente" pubblicate precedententemente, nel proprio blog!
Tutte le tavole porteranno la dicitura:
Nome e Cognome studente, 1.Urban Voids (o Numero corrispondente) Laboratorio IV D, prof. Antonino Saggio, con il nome del Consulente tra arch. R. Angelini, G. De Francesco G. Romagnoli Sapienza Università di Roma Fac. di Architettura, 2012.
Le tavole bicolimatiche avranno anche la dicitura. Approfondimento ambientale docenti M. Morlacchi V. Sforzini
Ecco il materiale minimo richiesto e gli argomenti per ciascuna sezione (Minimo una tavola A1 per argomento, ma anche di più se utile e necessario). In alcuni casi i disegni, se troppo ampi, possono correre su due Tavole A1 adiacenti sulla verticale)
A. Il concept dell'edificio dal punto di vista del programma
A1.Titolo del progetto. Sottotitolo esplicativo.
A2. Uno o due paragrafi che descrivono il mix funzionale e i PROCESSI di utilizzo messi in atto nell'edificio.
A3.Una indicazione in prima approssimazione, degli spazi necessari allo sviluppo del punto A2.
A4. Elementi dell'analisi del sito e della situazione specifica dell'area e delle ragioni che vi hanno spinto alla scelta del programma
A5. Altri elementi di ordine grafico, fotografico, concettuale che possono derivare da studi, esempi, appunti, indicazioni a lezione eccetera che possano supportare la ragione della scelta e la sua intima necessità.
Ogni altro materiale a vostra scelta
B. Le scelte dell'edificio dal punto di vista del contesto.
B.1 Le strutture di urban voids e le caratterisctiche della vostra area. Transazioni e creazione di strategie coordinate con almeno altri due urban voids limitrofi.
B2. L'idea di tessitura.. o altre idee (griglie ecctera) che spieghino alcune ragioni che presiedono alla nscita delle scelte strategiche del progetto. Utilizzo della scacchiera e delle foto della scacchiera in varie configurazioni se serve!
B3. Il contesto dal punto di vista dei processi sociali innanzitutto le relazione con il cliente, interviste punti chiave eccetera
Altri argomenti pertinenti....
C. Le scelte dell'edificio dal punto di vista ambientale.
C1. Relazioni ambientali specifiche, idee di ciclo e processo locale e globali
C2. Come da richieste specifiche da parte dei docenti del modulo ambientale... "per esempio" ma da verificare e scegliere quelle di effettiva pertinenza
C3. analisi critica con le strategie d'intervento dal punto di vista ambientale
Un paragrafo descrittivo dei principi adottati nel vostro progetto dal punto di vista ambientale .... Planimetria con inserimento nell'area con studio di Ventilazione (500 o 1000)
....Planimetria con inserimento nell'area con studio di Soleggiamento (500 o 1000)....Profilo di inerimento on studio di Ventilazione e con studio di Soleggiamento (500 o 1000)
...Sezione sud ovest/nord est con funzionamento estivo (200)... Sezione sud ovest/nord est con funzionamento invernale (200)
..... Pianta distributiva in cui sono indicati le relazioni tra il programma d'uso (zona serventi e servite) e le scelte ambientali (200 o 500)....Dettaglio di prospetto e o sezione on presenza di dettaglio tecnologico pertinente al sistema ambientale adottato (scala a scelta)
NB. Gli elaborati sono scrittografici (contengono cioè scritte e diagrammi esplicativi)
D. La presentazione della caratteristica chiave dal punto di vista spaziale. Il bang
D1. Una titolazione del concetto chiave e un pargrafo descrittivo
D2. Un prodotto di natura "sintetica ed espressiva" a vostra scelta (schizzo, digramma, plastico, fotomontaggio) sul punto D1. Il disegno è fondamentale per far capire il "bang" dell'edificio. Potrebbe essere una sezione prospettica, una assonometria o altro ancora. Scegliere e produrre questo elaborato è la chiave della tavola . Utilizzo della scacchiera o di foto della stessa per far capire la qualità formale da voi ricercata
D3. Una sezione o più sezioni schematiche dell'edificio (al 200).
D4. Una ipotetica organizzazione in pianta dal punto di vista del bang.
D5. La auspicabile relazione con principi di natura ambientale e bioclimatica
Ogni altro materiale a vostra scelta
E. La presentazione della vostra organizzazione chiave dal punto di vista distributivo.
E1. Diagramma a blocchi- o strumento similare - con indicate in percentuale le aree e le relazioni tra le diverse attività. Deve essere in scala, ma non uguale allo sviluppo progettuale: lo spazio esterno e i flussi potenzialmente che attivizzano un ciclo di 24 ore
E2. Raccolta di almeno "tre" fotocopie provenienti da manuali dell'architetto o da regesti tipologici distributivi con un dettaglio distributivo associabile a tre parti del vostro programma d'uso (esempio mensa cucina blocco scale parcheggio libreria eccetera eccetera) Inserite o meno nelle tavole a vostra esclusiva scelta
E3. Schematizzazione al 500 e con colori (tipo brochure commerciale) del vostro progetto dal punto di vista dei processi con indicate approssimativamente le quantità (spazi coperti; spazi scoperti di progetto..) Calcolate le superfici coperte dell'edificio in metri quadri nei vari piani utilizzati, e le superficie scoperte sia se terrazze sia se trattamenti a terra. Per avere un'idea di prima approssimazione del costo complessivo dell'opera usate queste indicazioni: 1100 euro al Mq spazi coperti, 300 euro spazi scoperti. Arrivate rispetto alle vostre quantità ad un costo indicativo dell'opera.
E4. Schematizzazione delle zone serventi e servite al 500 come fosse una macchina! elementi di distribuzione e energetici (cioè servizi da quelli igenici a tutti di vario tipo)
E5. Applicazione corretta e dimensionata nella pianta reale al 200 dei vostri tre schemi distributivi dimensionali
E6 . Schematizzazione delle logica del rapporto tra zone sertive/serventi e funzionamenti ambientali e bioclimatici!
F. La presentazione della vostra organizzazione chiave dal punto di vista della ricerca espressiva.
F1. Una paragrafo descrittivo e un possibile titolo della vostra ricerca in questo campo
F2. Schemi di ricerca (scala 1:200) a. Silhouette, b. Chiaroscuro, c. Attacco al suolo, d. Attacco al cielo f. colore, g. proiezioni elementi informatici e virtuali, h. elementi di dettaglio ambientale e tecnologico , Devono essere schizzati a mano!!! e digitizzati nelle tavole. Si esludono grafici computerizzati
F3. Due prospettti alla scala 1:200
F4.Scelta di uno e di uno solo dei prospetti significativi dell'edificio scala 1:100
F5. FOTOMONTAGGIO del progetto nell'area di URBAN VOIDS realizzato con grande cura. Disegno chiave fondamentale dell'intera presentazione.
E6. Ogni altro materiale a vostra scelta
preparatevi a rispondere ad alcune domande pertinenti al vostro progeto in rapporto allo STUDIO del libro del corso "Architettura e Modernità"
ATTENZIONE: InISERITE NEI GRAFICI FONDAMETALI
A. La SCALA METRICA (cosi potete anche usare scale non canoniche..)
B. IL NORD
g. La ricerca ricerca Plastica.
F1. Plastico di inquadramento generale del progetto nell'area
F2. Plastico di studio concettuale che evidenzia il bang
F3. Plastico di insieme al 200
F4. Plastico di dettaglio della facciata a scelta dal 100 al 20 a seconda dei casi.
F5. Plastico concettuale "scacchiera"
NB Si richiedono almeno due plastici "a scelta della studente" tra i cinque elencati. Ricordarsi che i plastici posson essere fotografati,aanche nel processo di costruzione, poi trattati graficamente e quindi inseriti nelle tavole per sottolineare un punto particolare;
Il tooling se lo avete fatto!
Norme per appendere le tavole e condurre l'esame
1.
Innanzitutto precipitate a prenotarvi se non lo avete fatto. Sto per chiudere e stampare. Dopodichè le liste sono chiuse e tutto si complica
2.
Inserite tutte le vostre tavole in formato Jpeg nel vostro blog. E' importante, è a futura memoria, molti di voi e io stesso ci fa piacere riguardare il vostro lavoro! Inoltre la pubblicazione oltre ad essere a futura memoria serve anche per selezionarvi per mostre, pubblicazioni ecctera.
3.
Presenteremo appendendo i disegni per l'intera facoltà ! in una specie di Mostra evento per tutti. Si appenderà tutti già il giorno 15 luglio TUTTI inizando alle ore 8,15! e poi si deciderà contestualmente da dove inziare. Appendere al muro (procuratevi scotch di carta Trasparente) i vostri lavori, organizzati per gruppo. Procederemo a discutere la tavola generale e poi i lavori singoli per l'esame.
4.
Preparate con cura la parte orale dell'esame! fate degli allenamenti per essere sicuri di dire le cose importanti nell'ordine che meritano. Questo può avvenire solo preparando prima la presentazione orale che ha un suo peso.
Appendere le tavole consente le seguenti attività
A. Fotografarle prima (lo potete fare voi stessi oltre a io stesso)
B. Rendere partecipi gli altri
C. Avere una partecipazione (silenziosa!) allo svolgimento dell'esame
Utlizzate Il corridoio esterno all'aula F5, utilizzate le vetrate in entambi i versi. Se non bastasse, andate nei corridoi esterni al piano terra.
Esempi grafici di riferimento
Vi Possono essere utili come esempio alcune tesi di laurea particolarmente esemplari. Naturalmente le tesi richiedono molto più tempo lavoro e implicano una maggiore esperienza rispetto alla vosta, ma l'approccio non è lontanissimo e alcune tecniche di presentazine vi posson essere utili
Molti esempi provengono da questi due volumi
preview integrale del catalogo clicca anteprima e aspetta
Ricordatevi sempre che da questo link potete accedere a tutte le tesi di laurea, relatore Saggio, con forniscono una ampia casistica di moalità di rappresentazzione-
Tesi Prof. Antonino Saggio Vai
Esempio di fotomontaggio
Se volete usare Sketch up per fare un ambientamento andate a questo tutorial che ho fatto tempo fa >>>
Nazareno Tiberi
Ivan De cataldo
Luca Bregni Antonio De Rosa >>
Esempio di fotomontaggio
Giovanni Betti
Claudia Fiorentino
altri esempi di fotomontaggio realizzai dagli studenti del laboratorio 2010 vai qui
Esempio di Pianta al 200
Andrea Sollazzo
Esempio di Sezione e prospetto al 200
Matteo Alfonsi
Cristian Farnella, Lorena Greco vai all'intera tesi per altre belle idee anche di grafica >>>
Sezione di dettaglio >>>
Esempio di Pianta e sezione al 100
Rosetta Angelini Galleria "come se"
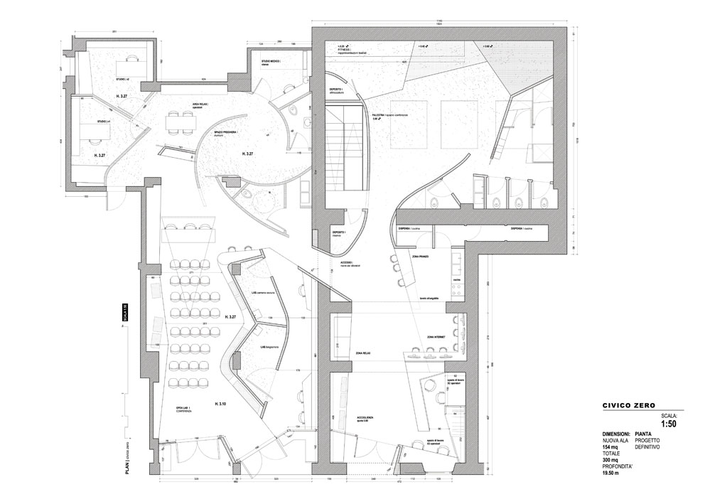
Rosetta Angelini, Centro civico Zero

con rappresentazione Grafica Crilo
Esempio di Analisi Contestuale
Antonino Di Raimo
Esempio di Ricerca Plastica
Rosetta Angelini
Esempio di Bang
Marta Moccia
Esempio di Elementi Distributivi Quantitativi
Vanina Ballini
Esempio di Integrazione architettonica ambientale
Nazareno Tiberi
Esempio di dettaglio di un elemento chiave del progetto
Vanina Ballini

Link ad alcuni dei lavori migliori degli anni precedenti
