
Antonino Saggio
Home
Corso Home
Conclusione del corso: Elaborati
per esame
Revisioni, Esame e Mostra finale
A. Revisioni
Le revisioni si svolgeranno nella sede di via Gramsci ogni lunedi alle 14:30 sino all'esame finale
Iscrivetevi per sostenere
l'esame all'ultimo appello di febbraio !
Fateci sapere se volete sostenere in altra sessione, anche
precedente, l'esame
Portate tutto il materiale
presentato al pre-esame con gli avanzamenti già richiesti per le
revisioni insieme a un report SCRITTO della revisione precedente.
B. Esame e Mostra Finale
28 Febbraio 2024 esame
Sede di Via Gramsci e con ogni probabilità anche il 29. ore 8.30
Si appende tutti e si presenta con decisione
contestuale (cioè l'ordine di presentazione dipende da molti
fattori, che si decideranno di volta)
Si verbalizza tutti
insieme alla fine di tutti
gòi esami degli esami. L'appello del
Laboratorio di sintesi , è in relazione alla Frequenza
Attiva testimoniata dall'efficacia delle consegne didattiche
svolte durante lo svolgimento del ciclo di insegnamento insieme
a una presenza del 70% delle lezioni e delle revisioni,
Gli esami sono fissati con il 28 febbraio 2024 in facoltà Venire in facoltà TUTTI alle ore 8:30 per appendere ti. AVERE SCOTCH TRASPARENTE (devo fare una ripresa video quello di carta viene male!). Gli esami sono in Via gramsci Aula 7 e corridoi adiacenti, si protrarranno per tutta la giornata. Tutti i lavori sono appesi e la commissione si muoverà per gli esami anche in rapporto a sovarapposizione con altri esami per minimizzare conflitti. Anche per questo, tutti i lavori devono essere appesi dalle ore 9 massimo e rimanere appesi sino al termine degli esami.
E' fondamentale che gli studenti attivino i processi di Prenotazione automatica in segreteria secondo le modalità a voi note al sito infostud
"ULTIMO appello
disponibile per il laboratorio di SINTESI del mese di Febbraio".
Comiplate la valutazione del LAboratorio. Aggiungete commenti e
suggerimenti che ci sono molto utili
Prenotazioni a precedenti appelli non sono valide
Invitate i Clienti
Siccome tutti i lavori saranno
appesi lungo i muri della facoltà, con i plastici su uno o più
sgabelli, in questo caso accanto alle vostre tavole, è
molto auspicabile che venga il vostro cliente a vedere il lavoro
finito. Il cliente è benvenuto a partecipare con i
docenti alla discussione sui progetti. Ricordatevi di presentare
il cliente ai docenti e al professore. La maniera di procedere è
la seguente. Invitare il cliente, se si vuole anche inviandogli la
mascherina che sarà presto pronta, quando il cliente arriva,
all'ora che lui preferisce, portate
il cliente in giro per la mostra e illustrategli brevemente due o
tre progetti secondo voi interessanti, cioè fategli una visita
guidata (è sempre fondamentale e utilissimo). Poi
illustrategli in dettaglio il vostro progetto e se potete anche
quelli interconnessi. Poi me lo presentate e noi
faremo la discssione del vostro esame con il cliente
presente. In altre parole il concetto è: quando il cliente è
disponibile la commissione si sposta ad esaminare lo specifico
progetto. in cui è coinvolto.
Inviate amici o familiari
Sciccome questa è una mostra e
non solo un esame fate venire chi desiderate. per esempio per i
genitori è questa una delle pochissime occsioni per capire che
fate concretaente in Facoltà. Se vengono fate come con i clienti e
poi presentateli a Gaetano e a me.
C. Contenuto dettagliato dell'esame finale
Opzionale Tavola introduttiva di gruppo
Le presentazioni-esami si svolgeranno per gruppi omogenei di tre persone, minimo - sei persone massimo a scelta degli studenti per affinità. Gli studenti possono formare il gruppo per "adiacenza" (preferbilmente) o altrimenti per attinenze tematiche. Il gruppo-presentazione deve darsi un nome-argomento ed iniziare la presentazione congiuntamente per poi passare alle presentazioni individuali.
Il gruppo redige almeno una tavola sinottica A1 in cui a sua scelta individua il tema di affinità e proprorre alcune strategie ambientali di interconnessione tra le diverse aree proposte per gli interventi. Per esempio un programma che punta sulla bicicletta può avere relazioni con altri limitrofi che sviluppano un tema complementare localizzativi in un altro urban voida area. Dei fatti urbani, dei percorsi delle illuminazioni delle alberature e soprattutto la Presenza della TT LINE possono rafforzare le sinergie tra più progetti.
In altre parole si tratta da una parte di rafforzare l'aspetto "narrativo" del progetto (e cioè la sua relazione con gli altri di supporto integrazione) e dall'altra alcune "strutture urbane" e/o informative che possono rafforzare questa coesione.
Si dà per inteso che ciascun gruppo tematico si formi su una negozione ATTIVA tra i progetti che condividano strategicamente la migliore possible relazione tra almeno tre progetti.
E' auspicabile che pur all'interno delle scelte compiute si indichino altri possibili progetti eventualmente da inserire in una connessione tematica o urbana generale.
Tavole
Gli studenti redigeranno "un
minimo" di Sette tavole, nel formato A1 verticale
(preferibile per varie ragioni) ciascuna organizzata sui seguenti
argomenti.
Sono richiesti due plastici.
E' importante capire che la presentazione è tematica...cioè ogni capitolo che contiene un argomento ha un titolo e le scelte dei grafici ruotano su quel titolo-argomento. questo modo di presentare-raccontare il progetto esclude quindi Tavole organizzate semplicemnete sugli elaborati grafici o sulle scale grafiche ma al contrario anche le tavole di tipo architettonico individuano "UN TITOLO TEMA" (la piazza, il percoso, le terrazze, le spazialità le aree di trnsizione, l'immagine eccterea) e fanno ruotare sul quel tema i grafici più rappresentativi. Per esempio Rendering Piante, sezioni, sezioni prospettiche, assonometrie eccetera.
È questa una disciplina molto importante.Viene fatta nelle tesi a ecco un esempio
Il titolo della tavola "mixitè della residenzialita - Foresteria.
Mette piante, viste schemi su quel Tema!
Questa tecnica è decisiva in particolare quando si partecipa a Conocrsi di architettura ed è bene che cominicat a praticarla.
Tutto al link Michele Spano

Le tavole devono essere "assolutamente" pubblicate precedententemente, nel proprio blog!
Tutte le tavole porteranno la dicitura In alto:
Nome e Cognome studente, 1.
TTLIne25 (con ilNumero corrispondente alla vostro area) Laboratorio di Sintesi,
prof. Antonino Saggio, Assistente G.
De Francesco "Sapienza" Università di Roma Fac. di Architettura,
2024
Ecco il materiale minimo richiesto e gli argomenti per ciascuna sezione (Minimo una tavola A1 per argomento, ma anche di più se utile e necessario in particolare nelle sezioni tecniche del progetto).
In alcuni casi i disegni, se troppo ampi per la scala rchiesta, possono correre su due Tavole A1 adiacenti sulla verticale). vedi sotto

NB: Inserite una scala
metrica grafica nei disegni tecnici, insieme alla freccia del
nord
i disegni possono essere anche non nella scala esatta "canonica"
visto che sulle tavole esiste la scala grafica. Quindi riduceteli
ad hoc
Ricercate una grafica espressiva, certamente, ma evitando categoricamente effetti fumettistici.
N.B:
Qui si indica il capitolo della
esposizione, ogni capitolo naturalmente puo essere espresso in
più tavole quando è necessario
A. Il concept dell'edificio dal punto di vista del programma
A1.Titolo del progetto. Sottotitolo esplicativo.
A2. Uno o due paragrafi che descrivono il mix funzionale e i PROCESSI di utilizzo messi in atto nell'edificio.
A3.Una indicazione in prima approssimazione, degli spazi necessari allo sviluppo del punto A2.
A4. Elementi dell'analisi del sito e della situazione specifica dell'area e delle ragioni che vi hanno spinto alla scelta del programma
A5. Altri elementi di ordine grafico, fotografico, concettuale che possono derivare da studi, esempi, appunti, indicazioni a lezione eccetera che possano supportare la ragione della scelta e la sua intima necessità.
Ogni altro materiale a vostra scelta
B. Le scelte dell'edificio dal punto di vista del contesto.
B.1 Le strutture di TT LINE e le caratteristiche della vostra area.
B2. L'idea di tessitura.. o altre idee (griglie ecctera) che spieghino alcune ragioni che presiedono alla nascita delle scelte strategiche del progetto. Utilizzo della scacchiera e delle foto della scacchiera in varie configurazioni se serve!
B3. Il contesto dal punto di vista dei processi sociali innanzitutto le relazione con il cliente, interviste punti chiave eccetera
Altri argomenti pertinenti....
C. Le scelte dell'edificio dal punto di vista ambientale e idee sistemiche
C1. Relazioni ambientali specifiche, idee di ciclo e processo locale e globali
C3. Analisi critica con le strategie d'intervento dal punto di vista bioclimatico
Un paragrafo descrittivo dei principi adottati nel vostro progetto dal punto di vista bioclimatico .... Planimetria con inserimento nell'area con studio di Ventilazione (500 o 1000)
....Planimetria con inserimento nell'area con studio di Soleggiamento (500 o 1000)....Profilo di inserimento con studio Ventilazione e Soleggiamento Opzionale
...Sezione sud ovest/nord est con funzionamento estivo (200)... Sezione sud ovest/nord est con funzionamento invernale (200) Opzionale
..... Pianta distributiva in cui sono indicati le relazioni tra il programma d'uso (zona serventi e servite) e le scelte bioclimatiche (200 o 500)....Dettaglio di prospetto e o sezione con presenza di dettaglio tecnologico pertinente al sistema ambientale adottato (scala a scelta) Opzionale
--- Considerazioni di funzionamento "sistemico" dell'edificio nella sua singolarità o in sinergia al progetto in parteneriato (ottimizzazione delle risorse e degli scarti)
NB. Gli elaborati sono scrittografici (contengono cioè scritte e diagrammi esplicativi)
C. Le scelte
dell'edificio dal punto di vista della strategia Idrica o
in alternativa TTLINE
le
scelte idriche sono fondamentali per i progetti lungo il
fiume. Non abbiamo avuto quest'anno il tempo di farlo in
classe. Lo farete da soli seguendo la lezione tipo (eccola)
con il link al bellissimo libro gratuito di Gaetano De
Francesco e seguendo il video (eccolo)
IDRICHE
D1.Le tre strategie prescelte indicate in planimetria con
evidenziazione dei concetti adottati
D2. Sezioni corrispondenti ai punti delle strategie indicate a
scala appropriata
D3 Schemi grafici sintetici ed esemplficativi delle soluzione
adottate
D4. Evidenziazione nel plastico, con cartoncino
colorato di azzurro dei punti in cui sono adottate le strategie
idriche usate
Altri argomenti pertinenti....
TTLINE
D1.Evidenziata la prossimità e spiegate come il
vostro progetto ne trova forza
D2. Sezioni corrispondenti alla preseza della TTLine (se
limitrofa)
D3 Evidenziazioni se il vostro progetto ne trae ausilio
architettonico spaziale (con una prospettiva dalla TTLine al
Vostro Progetto)
D4. Evidenziazione nel plastico, con cartoncino
colorato di Verde dLa presenza della TT LIne
Altri argomenti pertinenti....
D. La presentazione della
caratteristica chiave
dal punto di vista della qualità spaziale (bang
questa è una tavola specifica su la "Migliore" carattersitica
spaziale)
D1. Una titolazione del concetto chiave e un pargrafo descrittivo
D2. Un prodotto di natura "sintetica ed espressiva" a vostra scelta (schizzo, digroamma, plastico, fotomontaggio) sul punto D1. Il disegno è fondamentale per far capire la qualià spaziali ed espressive ricercate nel vostro prgetto . Potrebbe essere una sezione prospettica, una assonometria o altro ancora. Scegliere e produrre questo elaborato è la chiave della tavola . Utilizzo della scacchiera o di foto della stessa per far capire la qualità formale da voi ricercata
D3. Una sezione o più sezioni schematiche dell'edificio (al 200).
D4. Una ipotetica organizzazione in pianta dal punto di vista della qualità spaziale
D5. La auspicabile relazione con principi di natura ambientale e bioclimatica
D6. I temi dello sguardo critico e della riflessione artistica.. Hanno influito come? Si sono intrecciati agli altri?
Ogni altro materiale a vostra scelta
E. La presentazione
della vostra organizzazione
dal punto di vista distributivo
E1. Diagramma a blocchi - o strumento similare - con indicate in percentuale le aree e le relazioni tra le diverse attività. Deve essere in scala, ma non uguale allo sviluppo progettuale: lo spazio esterno e i flussi potenzialmente che attivino un ciclo di 24 ore
E2. Raccolta di almeno "tre" fotocopie provenienti da manuali dell'architetto o da regesti tipologici distributivi con un dettaglio distributivo associabile a tre parti del vostro programma d'uso (esempio mensa cucina blocco scale parcheggio libreria aule alloggi eccetera eccetera) Inserite o meno nelle tavole a vostra esclusiva scelta
NUOVO IMPORTANTE
E3. Schematizzazione al 500 e con colori (tipo
brochure commerciale) del vostro progetto dal punto di vista dei
processi con indicate approssimativamente le quantità
(spazi coperti; spazi scoperti di progetto..)
Calcolate le superfici coperte dell'edificio in metri quadri nei
vari piani utilizzati, e le superficie scoperte sia se terrazze
sia se trattamenti a terra. Per avere un'idea di prima
approssimazione del costo complessivo dell'opera usate
queste indicazioni: 1200 euro al Mq spazi
coperti inclusi anche il sottosuolo, 350 euro spazi scoperti.
Arrivate rispetto alle vostre quantità ad un costo
indicativo dell'opera.
A queste spese di costo di costruzione potete aggiungere
"Spese aggiuntive per un produttore ordinario"
Costo dell’area ( 20 per cento del costo di costruzione forfettario)
Costo di progettazione generale ( 15 per cento del costo di costruzione forfettario circa compreso di progettazione, collaudo, sicurezza direzione lavori)
Oneri concessori ed eventuale contributo straordinario ( 5 per cento del costo di costruzione forfettario)
E4. Schematizzazione delle zone serventi e servite al 500 come fosse una macchina! elementi di distribuzione e energetici (cioè servizi da quelli igenici a tutti di vario tipo)
E5. Applicazione corretta e dimensionata nella pianta reale arredata al 200 dei vostri tre schemi distributivi dimensionali
E6 . Schematizzazione delle logica del rapporto tra zone sertive/serventi e funzionamenti ambientali e bioclimatici!
F. La presentazione della vostra organizzazione dal punto di vista strutturale.
vedi spiegazione più dettagliata >>>>
F1. le travi principali,
F 2. il senso di tessitura dei solai
F 3. le parti di irrigidimento
F 4. i Vuoti del progetto. Per esempio patii, grande atrii passanti, rampe, scale.
F 5 Le situazioni particolari Per esempio grandi sbalzi, situazioni d'angolo, atrri biclimatici ecctera
Opzionale A questo materiale sarebbe auspicabile
aggiungere una sezione "costruttiva" che renda evidente il vostro
controllo di alcuni apsetti fondamentali del progetto.
Q uesta parte potrebbe dare una maggiore concretezza e vigore al
progetto.
G. La presentazione della
vostra organizzazione chiave dal punto di vista
della ricerca espressiva
G1. Una paragrafo descrittivo e un possibile titolo della vostra ricerca in questo campo
G2. Schemi di ricerca (scala 1:200)
a. Silhouette, b. Chiaroscuro, c. Attacco al suolo, d. Attacco al cielo f. colore, g. proiezioni elementi informatici e virtuali, h. elementi di dettaglio ambientale e tecnologico , Devono essere schizzati a mano!!! e digitizzati nelle tavole. Si esludono grafici computerizzati. Fate dei disegni a mano che mettano in evidenza quello che è importante e anche la ricerca espressiva, se il progetto aderisce principio alla categoria dellla massa, trasparenze tessiture, Paesaggio, Frammento, Pieghe e superfici
G3. Due prospettti alla scala 1:200
G4.Scelta di uno e di uno solo dei prospetti significativi dell'edificio scala 1:100
NUOVO NUOVO
G5. FOTOMONTAGGIO
del progetto nell'area di TT LINErealizzato con grande cura.
Disegno chiave fondamentale dell'intera presentazione.
Per chi non ha alcunaesperienzain alternativa si può usare una
vista del plastico inserita su una foto del luogo del progetto.
Potete realizzare questo disegno in due
modi
A. Inserire il modello semplificato in
Google earth e da li scegliere la vista più opportuna e lavorarla
poi in photoshop
B. scegliete la foto più opportuna. Inserita in Rhino o in altro
3d. Fate ruotare e scalare il modello in maniera che combaci con
la fotodi sfondo. Poi trattate il tutto il Photoshop
G6. Ogni altro materiale a vostra scelta
Preparatevi a rispondere ad alcune
domande pertinenti al vostro progetto in rapporto
allo studio del libro del corso "Architettura e Modernità" in
particolare in riferimento al capitolo 6-8.
ATTENZIONE: INSERITE IN TUTTI I GRAFICI FONDAMENTALI
A. LA SCALA METRICA (cosi potete anche usare scale non canoniche..)
B. IL NORD
C: Le quote principali battute in pianta
e in sezione
H. La ricerca
Plastica
H1. Plastico di inquadramento generale del progetto nell'area Scala a scelta--
H2. Plastico di studio concettuale che evidenzia il bang
H3. Plastico di insieme al 200
H4. Plastico di dettaglio della facciata a scelta dal 100 al 20 a seconda dei casi.
H5. Plastico concettuale "scacchiera"
NB Si richiedono almeno due plastici "a scelta della studente" tra i cinque elencati. Ricordarsi che i plastici possono essere fotografati, anche nel processo di costruzione, poi trattati graficamente e quindi inseriti nelle tavole per sottolineare un punto particolare;
M. La ricerca Spaziale e Funzionale
che so la sclainterna, lo spazio tra gli edifici, la copertura praticabile, eccetera.
per ogni tema scegliete la pianta al 200 o scala vicina e accoppiate nella tavola Altri disegni er esempio una sezione o piùsezioni significative, un prospetto significativo un rendering o vista del plastico che illustri il tema.
questa tecnica serve a non parlare delle piante in astrato, ma guidare la lettura attraverso un concetto
L. Le ispirazioni
Solo se si è fatta a lazione
Anche in una sola tavola raccontare le proprie ispirazioni profonde, quelle derivate dall'imprinting e quelle dellaricerca artistiche o dalle lecture, o altre fonti di ispirazioni, in linea di massima "extra Architettoniche" visto che di quelle si è trattato nelle tavole specifiche, scacchiere, programma, inserire in un punto a piacere della presentazioni
L. La brochure
NUOVO
E' richiesto di montare una selezione del materiale "come se fosse una brochure" per far circolare il progetto. Sempre di più in molti pratiche dell'architettura contemporanea le prime proposte passano in forma di brochure di medio piccolo formato. Sono queste presentazioni-idee concetti quelle che muovono il progetto in molti ambiti preliminari (raporti con i clienti, con le amministrazioni i finanziatori e muovono il progetto in questa dimensione) .
Potete senz'altro fare solo un A4 peigato in tre fronte retro oppure fare qualcosa di più articolato a scelta
In questo caso il formato deve essere 16,83 x 26,03 verticale.. considerate sempre di poter avere un disegno che corre su due pagine affiancate!
Realizzate anche un unico pdf (in genere il programma che si adopera è Adobe Acrobat professional - della suite adobe -
Per impaginare si puo usare word o anch pages (nel Mac) impostando le dimensioni pagina in 16,83 x 26.03 e poi chiedere di esportare in pdf, oppure se lo sapete usare il programma professionale di Impaginazione Indesign 8suite adobe) o Quark. Fare ogni pagina inphotoshop e poi esportarla in pdf e poi montarle tutte insieme in Adobe Acrobat professional - della suite adobe - è molto più laborioso
POTRETE PUBBLICARE ON
DEMAND IL VOSTRO PROGETTO in Brochure da qui;
http://www.lulu.com/
G: il Tooling
Opzionale quest'anno non è stato richiesto ma non si sa mai
qualcuno
lo ha scoperto magari lo stesso vuole provare, perché no?
Kiluanji Kia Henda The Merchant of Venice Inkjet print on aluminum 2010 >>
Come specificato nella presentazione deve essere
realizzato un Fotomontaggio
fatto al massimo delle vostre possibilità. Sotto esempi
Norme per appendere le tavole e condurre l'esame
1.
Innanzitutto ricordate di prenotarvi Infostud se non lo avete
fatto per l'ultimo appello di Febbraio .
2.
Inserite tutte le vostre tavole in formato Jpeg nel vostro blog.
E' importante, è a futura memoria, molti di voi e io stesso fa
piacere riguardare il vostro lavoro! Inoltre la pubblicazione
oltre ad essere a futura memoria serve anche per
selezionarvi per mostre, pubblicazioni eccetera.
3.
Presenteremo appendendo i disegni per l'intera facoltà ! in una
specie di Mostra evento per tutti. Si appenderà tutti già il
giorno
28 febbraio TUTTI inizando alle ore 8,30!
e poi si deciderà contestualmente da dove inziare.
Appendere al muro (procuratevi scotch Trasparente)
i vostri lavori, organizzati per gruppo.
Procederemo a discutere la tavola generale e poi i lavori singoli
per l'esame.
4.
Preparate con cura la parte orale dell'esame! Fate degli
allenamenti per essere sicuri di dire le cose importanti
nell'ordine che meritano.
Questo può avvenire solo preparando prima la presentazione orale
che ha un suo peso.
Appendere le tavole consente le seguenti attività
A. Fotografarle prima (lo potete fare voi stessi oltre a io
stesso)
B. Rendere partecipi gli altri colleghi
C. Invitare cliente che come detto possono partecipare all'esame
D. Avere una partecipazione (silenziosa!) allo svolgimento
dell'esame
E. Fare un breve film di tutti i lavoi e di voi stessi. ecco un
esempio su
You Tube AA2013 o Youtube 2014
YouTube 2015
You
Tube 2016 Youtube
2017
You
tube 2018 YouTube2019
you tube
2021-22
you tube 22-23
Utlizzate I corridoi esterni all'aula, Come nel pre esame in Tevere cavo.
esempio:
Aniene Rims: n. 5, inRETE. Centro produzione artigianato
personalizzato e insegnamento software progettazione,
Silvano Oliva, Mail:olivasilvano@gmail.com,
http://olivasilvano.blogspot.it/
Ultimissime Notazioni anche in
email
Cari studenti,
Esempi grafici di riferimento
Vi Possono essere utili come esempio alcune tesi di laurea particolarmente esemplari. Naturalmente le tesi richiedono molto più tempo lavoro e implicano una maggiore esperienza rispetto alla vosta, ma l'approccio non è lontanissimo e alcune tecniche di presentazine vi posson essere utili
Ricordatevi sempre che da questo link potete accedere a tutte le tesi di laurea, relatore Saggio, forniscono una ampia casistica di modalità di rappresentazzione-
Tesi Prof. Antonino Saggio Vai
Esempio di fotomontaggio
Se volete usare Sketch up per fare
un ambientamento andate a questo tutorial che ho fatto tempo fa
>>>
Nazareno Tiberi
Ivan De cataldo
Luca Bregni Antonio De Rosa >>
Esempi di fotomontaggio
Giovanni Betti
Claudia Fiorentino
altri esempi di fotomontaggio realizzai dagli studenti del laboratorio 2010 vai qui
Esempio di Pianta al 200
Andrea Sollazzo
Esempio di Sezione e prospetto al 200
Matteo Alfonsi
Cristian Farnella, Lorena Greco vai all'intera tesi per altre belle idee anche di grafica >>>
Sezione di dettaglio
Esempio di Pianta e sezione al 100
Rosetta Angelini Galleria "come se"
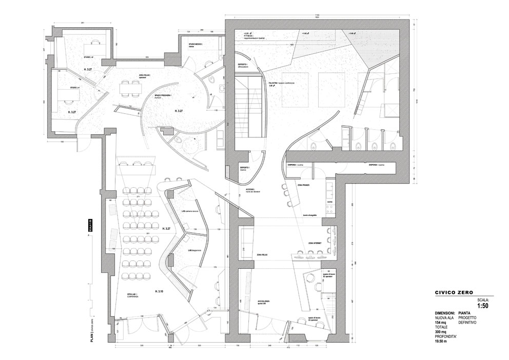
Rosetta Angelini, Centro civico Zero

con rappresentazione Grafica Crilo
Esempio di Analisi Contestuale
Antonino Di Raimo
Esempio di Ricerca Plastica
Rosetta Angelini
Esempio di Secelte spaziali Michela Falcone
Esempio di Tavola al 500 tipo brochure commerciale Federica Antonini 2018
Tavola al 200 Montata Federica Aridon 2018
cco un altro esempio (tutto dal blog di Federica Aridon).
Prima la tavola prodotta nel Laboratorio e successivamente la sua proposta (tra le vincitrici) pe l'Annuario Studenti


PROVA STRUTTURA Michela Barcelli e Sezione con dettaglio di Clarissa Anelli
Marta Moccia
Esempio di Elementi Distributivi Quantitativi
Vanina Ballini
Esempio di Integrazione architettonica ambientale
Nazareno Tiberi
Esempio di dettaglio di un elemento chiave del progetto
Vanina Ballini

Un Esempio di imprinting
Federica Feudi 2017
Link ad alcuni dei
lavori migliori degli anni precedenti
Molto importanti per capire grafica, modalità di
impostazione e migliorare il proprio progetto sulla base
dell'esperienza condivisa. Qeulli sopra riportati sono una piccola
aprte, navigando troverete ispirazione che porterete ancora avanti
a vostra volta.
LAboratorio sintesi 2020-2021

Laboratorio 2013 .. una selezione di progetti
Vedi un film you Tube di tutti Il lavori
Laboratorio 2012 ... una selezione di progetti
Vedi un film you Tube di tutti Il lavori
Laboratorio 2011 ... una selezione di progetti
Vedi un film you Tube di tutti Il lavori
Laboratorio 2010 ... una selezione di progetti
Vedi un film you Tube di tutti Il lavori
Molti esempi provengono da questi volumi, sono in biblioteca o in pdf
![]()
preview integrale del catalogo clicca anteprima e aspetta